Woning Phiny Dickgracht 11 Almere

Phiny Dickgracht 11, 1336GH Almere

Ontvang updates voor Stripheldenbuurt

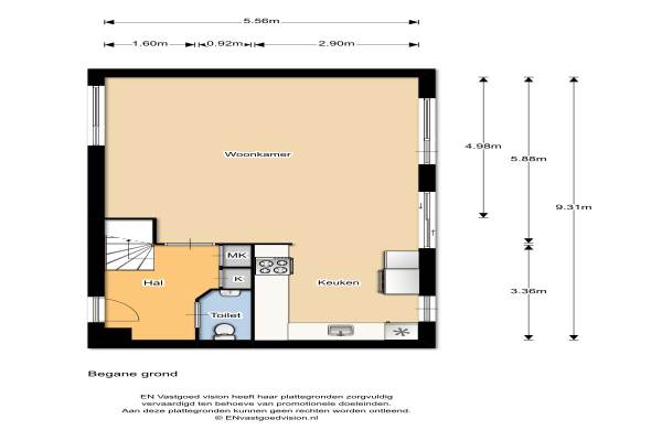
Het adres van deze woning uit 2004 is Phiny Dickgracht 11 te Almere. Het pand heeft een oppervlakte van 150m² en een perceeloppervlakte van 171m² en heeft 6 kamers kamers waarvan 5 slaapkamers. De geschatte waarde van deze woning is € 250.000.

Bekijk alle woningen in Stripheldenbuurt

Gegevens van Herenhuis, tussenwoning

Bouwjaar
2004
Geschatte waarde
€ 250.000
Oppervlakte
150 m2
Inhoud
450 m3
Aantal kamers
6 kamers
Slaapkamers
5
Badkamers
1 badkamer en 1 apart toilet
Soort bouw
Bestaande bouw
Eigendomssituatie
Volle eigendom
Ligging
Aan rustige weg en in woonwijk
Tuin
Achtertuin
Achtertuin
99 m² (11m diep en 9m breed)

Voorzieningen in de buurt

Boodschappen1,6 km
Grote supermarkt0,7 km
Cafetaria0,7 km
Restaurant0,8 km
Huisarts0,7 km
Ziekenhuis8,6 km
Kinderdagverblijf0,4 km
BSO0,4 km
Alle voorzieningen in Stripheldenbuurt

Binnenkijken bij Phiny Dickgracht 11 te Almere

Meer meldingen in deze omgeving

Nieuw bedrijf
December 2025
Carol Vogesgracht 32, 1336KG Almere

Nieuw bedrijf
December 2025
Jantje Joppestraat 1, 1336AS Almere

Binnenkijken bij
Zaterdag 29-11-2025
Dick Bosstraat 177, 1336CZ Almere

Nieuw bedrijf
November 2025
Mickey Mousestraat 89, 1336ZG Almere

Nieuw bedrijf
November 2025
Gerrit Th. Rotmanlaan 7, 1336AP Almere

Nieuw bedrijf
November 2025
Frans Piëtstraat 46, 1336CB Almere

Nieuw bedrijf
November 2025
Jimmy Brownstraat 4, 1336KD Almere

Faillissement
Donderdag 27-11-2025
Tante Pollewopstraat 12, 1336KC Almere

Direct een e-mail ontvangen bij nieuwe meldingen in deze regio?

Meld je dan GRATIS aan voor de Oozo Alert service voor Stripheldenbuurt

Instellen

Meer nieuws in Stripheldenbuurt

Weten hoe eenvoudig het is om af te vallen? Zonder pillen en smeersels en zonder je in het zweet te werken!
Kijk op eenvoudig-afvallen.nl

© 2012 - 2025 OOZO.nl - info@oozo.nl - Gegevens verwijderen? | Disclaimer | Privacy statement