Woning Lambikstraat 9 Almere

Lambikstraat 9, 1336MB Almere

Ontvang updates voor Stripheldenbuurt

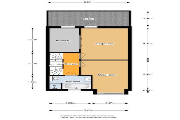
Het adres van deze woning uit 2006 is Lambikstraat 9 te Almere. Het pand heeft 5 kamers kamers waarvan 4 slaapkamers. De geschatte waarde van deze woning is € 275.000.

Bekijk alle woningen in Stripheldenbuurt

Gegevens van Eengezinswoning, tussenwoning

Bouwjaar
2006
Geschatte waarde
€ 275.000
Oppervlakte
0 m2
Inhoud
520 m3
Aantal kamers
5 kamers
Slaapkamers
4
Badkamers
1 badkamer en 1 apart toilet
Soort bouw
Bestaande bouw
Eigendomssituatie
Volle eigendom
Ligging
Aan rustige weg en in woonwijk
Tuin
Achtertuin en voortuin
Achtertuin
72 m² (12m diep en 6m breed)

Voorzieningen in de buurt

Boodschappen1,6 km
Grote supermarkt0,7 km
Cafetaria0,7 km
Restaurant0,8 km
Huisarts0,7 km
Ziekenhuis8,6 km
Kinderdagverblijf0,4 km
BSO0,4 km
Alle voorzieningen in Stripheldenbuurt

Binnenkijken bij Lambikstraat 9 te Almere

Meer meldingen in deze omgeving

Nieuw bedrijf
November 2025
Mickey Mousestraat 89, 1336ZG Almere

Nieuw bedrijf
November 2025
Gerrit Th. Rotmanlaan 7, 1336AP Almere

Nieuw bedrijf
November 2025
Frans Piëtstraat 46, 1336CB Almere

Faillissement
Donderdag 27-11-2025
Tante Pollewopstraat 12, 1336KC Almere

Nieuw bedrijf
November 2025
Jimmy Brownstraat 4, 1336KD Almere

Binnenkijken bij
Dinsdag 25-11-2025
Piloot Stormstraat 32, 1336HV Almere

Binnenkijken bij
Vrijdag 21-11-2025
Goofystraat 12, 1336ZE Almere

Binnenkijken bij
Vrijdag 21-11-2025
Ambt. Dorknoperlaan 69, 1336GB Almere

Direct een e-mail ontvangen bij nieuwe meldingen in deze regio?

Meld je dan GRATIS aan voor de Oozo Alert service voor Stripheldenbuurt

Instellen

Meer nieuws in Stripheldenbuurt

Weten hoe eenvoudig het is om af te vallen? Zonder pillen en smeersels en zonder je in het zweet te werken!
Kijk op eenvoudig-afvallen.nl

© 2012 - 2025 OOZO.nl - info@oozo.nl - Gegevens verwijderen? | Disclaimer | Privacy statement