Woning Simon van Collemstraat 84 Almere

Simon van Collemstraat 84, 1325NC Almere

Ontvang updates voor Filmwijk

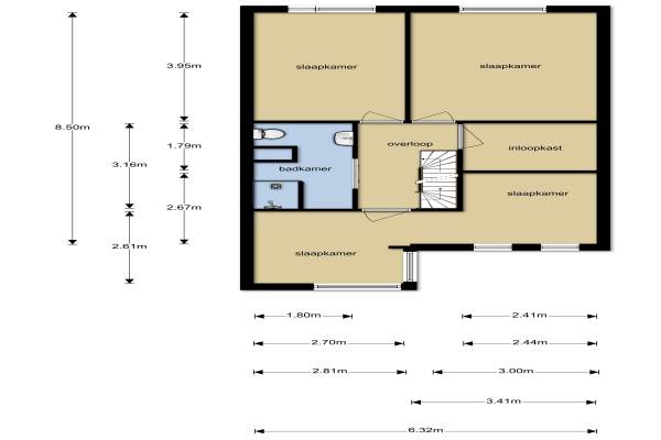
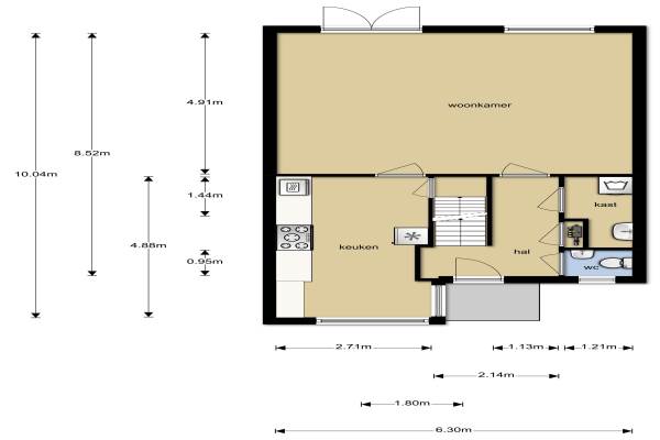
Het adres van deze woning uit 1995 is Simon van Collemstraat 84 te Almere. Het pand heeft 6 kamers kamers waarvan 4 slaapkamers. De geschatte waarde van deze woning is € 300.000.

Bekijk alle woningen in Filmwijk

Gegevens van Eengezinswoning, tussenwoning

Bouwjaar
1995
Geschatte waarde
€ 300.000
Oppervlakte
0 m2
Inhoud
475 m3
Aantal kamers
6 kamers
Slaapkamers
4
Badkamers
1 badkamer en 1 apart toilet
Soort bouw
Bestaande bouw
Eigendomssituatie
Volle eigendom
Ligging
Aan rustige weg, in woonwijk en open ligging
Tuin
Achtertuin en voortuin
Achtertuin
66 m² (11m diep en 6m breed)

Voorzieningen in de buurt

Boodschappen0,7 km
Grote supermarkt0,8 km
Cafetaria0,5 km
Restaurant0,4 km
Huisarts1,1 km
Ziekenhuis1,6 km
Kinderdagverblijf0,4 km
BSO0,4 km
Alle voorzieningen in Filmwijk

Binnenkijken bij Simon van Collemstraat 84 te Almere

Meer meldingen in deze omgeving

112 melding
Zondag 9-11-2025 om 11:47
John Fordstraat, Almere

112 melding
Vrijdag 31-10-2025 om 12:05
Charlie Chaplinweg, 1325CH Almere

112 melding
Vrijdag 31-10-2025 om 12:05
Charlie Chaplinweg, 1325CH Almere

112 melding
Vrijdag 31-10-2025 om 12:05
Charlie Chaplinweg, 1325CH Almere

Nieuw bedrijf
Oktober 2025
Annie Bosstraat 66, 1325ND Almere

Nieuw bedrijf
Oktober 2025
Buñuellaan 48, 1325PL Almere

Nieuw bedrijf
Oktober 2025
Simon van Collemstraat 132, 1325PR Almere

Binnenkijken bij
Woensdag 29-10-2025
Peter Sellershof 144, 1325GX Almere

Direct een e-mail ontvangen bij nieuwe meldingen in deze regio?

Meld je dan GRATIS aan voor de Oozo Alert service voor Filmwijk

Instellen

Meer nieuws in Filmwijk

Weten hoe eenvoudig het is om af te vallen? Zonder pillen en smeersels en zonder je in het zweet te werken!
Kijk op eenvoudig-afvallen.nl

© 2012 - 2025 OOZO.nl - info@oozo.nl - Gegevens verwijderen? | Disclaimer | Privacy statement