Woning Maria Callasstraat 20 Almere

Maria Callasstraat 20, 1311LK Almere

Ontvang updates voor Muziekwijk Noord

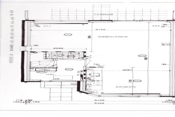
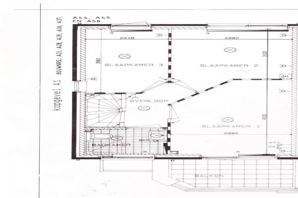
Het adres van deze woning uit 1992 is Maria Callasstraat 20 te Almere. Het pand heeft een oppervlakte van 110m² en een perceeloppervlakte van 133m² en heeft 5 kamers kamers waarvan 3 slaapkamers. De geschatte waarde van deze woning is € 225.000.

Bekijk alle woningen in Muziekwijk Noord

Gegevens van Eengezinswoning, tussenwoning

Bouwjaar
1992
Geschatte waarde
€ 225.000
Oppervlakte
110 m2
Inhoud
325 m3
Aantal kamers
5 kamers
Slaapkamers
3
Soort bouw
Bestaande bouw
Eigendomssituatie
Volle eigendom
Ligging
Vrij uitzicht, in woonwijk en aan rustige weg
Tuin
Achtertuin en voortuin
Achtertuin
40 m² (8m diep en 5m breed)

Voorzieningen in de buurt

Boodschappen0,6 km
Grote supermarkt0,6 km
Cafetaria0,8 km
Restaurant0,5 km
Huisarts0,6 km
Ziekenhuis3,5 km
Kinderdagverblijf0,3 km
BSO0,3 km
Alle voorzieningen in Muziekwijk Noord

Binnenkijken bij Maria Callasstraat 20 te Almere

Meer meldingen in deze omgeving

Nieuw bedrijf
Maart 2026
Golden Earringstraat 6, 1311JN Almere

Nieuw bedrijf
Maart 2026
Carusostraat 12, 1311KE Almere

Nieuw bedrijf
Maart 2026
Kornetstraat 33, 1312XE Almere

Faillissement
Woensdag 11-3-2026
Louis Armstrongweg 128, 1311RL Almere

Binnenkijken bij
Dinsdag 10-3-2026
Fugaplantsoen 13, 1312SH Almere

Binnenkijken bij
Dinsdag 10-3-2026
Glenn Millerweg 151, 1311KC Almere

Faillissement
Maandag 9-3-2026
Josephine Bakerstraat 73, 1311GC Almere

112 melding
Maandag 9-3-2026 om 08:45
Ouverture, Almere

Direct een e-mail ontvangen bij nieuwe meldingen in deze regio?

Meld je dan GRATIS aan voor de Oozo Alert service voor Muziekwijk Noord

Instellen

Meer nieuws in Muziekwijk Noord

Weten hoe eenvoudig het is om af te vallen? Zonder pillen en smeersels en zonder je in het zweet te werken!
Kijk op eenvoudig-afvallen.nl

© 2012 - 2026 OOZO.nl - info@oozo.nl - Gegevens verwijderen? | Disclaimer | Privacy statement