Woning Couperinstraat 46 Almere

Couperinstraat 46, 1323MZ Almere

Ontvang updates voor Muziekwijk Zuid

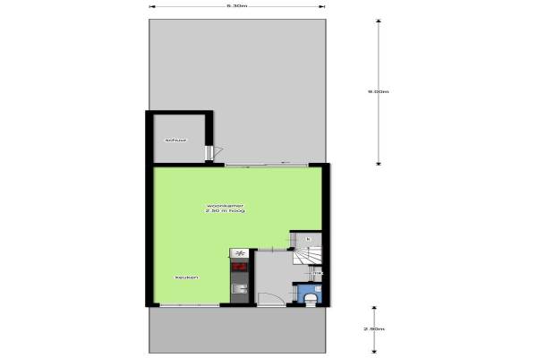
Het adres van deze woning uit 1992 is Couperinstraat 46 te Almere. Het pand heeft een oppervlakte van 96m² en een perceeloppervlakte van 117m² en heeft 4 kamers kamers waarvan 3 slaapkamers. De geschatte waarde van deze woning is € 200.000.

Bekijk alle woningen in Muziekwijk Zuid

Gegevens van Eengezinswoning, tussenwoning

Bouwjaar
1992
Geschatte waarde
€ 200.000
Oppervlakte
96 m2
Inhoud
346 m3
Aantal kamers
4 kamers
Slaapkamers
3
Badkamers
1 badkamer en 1 apart toilet
Soort bouw
Bestaande bouw
Eigendomssituatie
Volle eigendom
Ligging
In woonwijk
Tuin
Achtertuin en voortuin
Achtertuin
45 m² (9m diep en 5m breed)

Voorzieningen in de buurt

Boodschappen0,6 km
Grote supermarkt0,6 km
Cafetaria0,6 km
Restaurant0,5 km
Huisarts0,5 km
Ziekenhuis2,5 km
Kinderdagverblijf0,4 km
BSO0,3 km
Alle voorzieningen in Muziekwijk Zuid

Binnenkijken bij Couperinstraat 46 te Almere

Meer meldingen in deze omgeving

Onroerend goed
Dinsdag 11-11-2025
Operetteweg 88, 1323VC Almere

Binnenkijken bij
Dinsdag 11-11-2025
Willem Pijperstraat 30, 1323TJ Almere

Binnenkijken bij
Dinsdag 11-11-2025
Messiaenplantsoen 101, 1323LJ Almere

Binnenkijken bij
Dinsdag 11-11-2025
Bartokweg 28, 1323TB Almere

Binnenkijken bij
Dinsdag 11-11-2025
Poulencstraat 39, 1323GL Almere

Binnenkijken bij
Dinsdag 11-11-2025
Wagnerstraat 36, 1323CM Almere

Binnenkijken bij
Dinsdag 11-11-2025
Alban Bergstraat 6, 1323GH Almere

Nieuw bedrijf
November 2025
Tartinistraat 17, 1323AR Almere

Direct een e-mail ontvangen bij nieuwe meldingen in deze regio?

Meld je dan GRATIS aan voor de Oozo Alert service voor Muziekwijk Zuid

Instellen

Meer nieuws in Muziekwijk Zuid

Weten hoe eenvoudig het is om af te vallen? Zonder pillen en smeersels en zonder je in het zweet te werken!
Kijk op eenvoudig-afvallen.nl

© 2012 - 2025 OOZO.nl - info@oozo.nl - Gegevens verwijderen? | Disclaimer | Privacy statement