Woning Urkwal 93 Almere

Urkwal 93, 1324HR Almere

Ontvang updates voor Stedenwijk

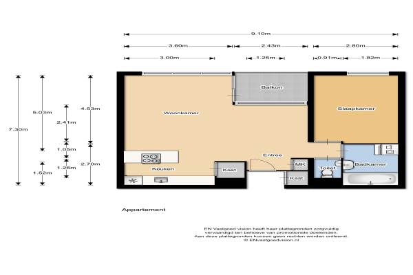
Het adres van deze woning uit 1983 is Urkwal 93 te Almere. Het pand heeft een oppervlakte van 65m² en heeft 2 kamers kamers waarvan 1 slaapkamers. De geschatte waarde van deze woning is € 185.000.

Bekijk alle woningen in Stedenwijk

Gegevens van Portiekflat (appartement)

Bouwjaar
1983
Geschatte waarde
€ 185.000
Oppervlakte
65 m2
Inhoud
195 m3
Aantal kamers
2 kamers
Slaapkamers
1
Badkamers
1 apart toilet
Soort bouw
Bestaande bouw
Eigendomssituatie
Volle eigendom

Voorzieningen in de buurt

Boodschappen0,7 km
Grote supermarkt0,6 km
Cafetaria0,4 km
Restaurant0,5 km
Huisarts0,5 km
Ziekenhuis1,8 km
Kinderdagverblijf0,3 km
BSO0,4 km
Alle voorzieningen in Stedenwijk

Binnenkijken bij Urkwal 93 te Almere

Meer meldingen in deze omgeving

Binnenkijken bij
Dinsdag 11-11-2025
Leerdampad 44, 1324LW Almere

Binnenkijken bij
Dinsdag 11-11-2025
Terneuzenstraat 8, 1324TM Almere

Binnenkijken bij
Dinsdag 11-11-2025
Helmondstraat 40, 1324WR Almere

Binnenkijken bij
Dinsdag 11-11-2025
Hoornstraat 8, 1324SJ Almere

Binnenkijken bij
Dinsdag 11-11-2025
Bredaweg 7, 1324XS Almere

Binnenkijken bij
Dinsdag 11-11-2025
Harderwijkoever 81, 1324HD Almere

Binnenkijken bij
Dinsdag 11-11-2025
Tegelenpad 29, 1324DR Almere

Binnenkijken bij
Dinsdag 11-11-2025
Bredaweg 18, 1324XV Almere

Direct een e-mail ontvangen bij nieuwe meldingen in deze regio?

Meld je dan GRATIS aan voor de Oozo Alert service voor Stedenwijk

Instellen

Meer nieuws in Stedenwijk

Weten hoe eenvoudig het is om af te vallen? Zonder pillen en smeersels en zonder je in het zweet te werken!
Kijk op eenvoudig-afvallen.nl

© 2012 - 2025 OOZO.nl - info@oozo.nl - Gegevens verwijderen? | Disclaimer | Privacy statement