Woning Hotel de Wereldstraat 6 Almere

Hotel de Wereldstraat 6, 1318AR Almere

Ontvang updates voor Verzetswijk

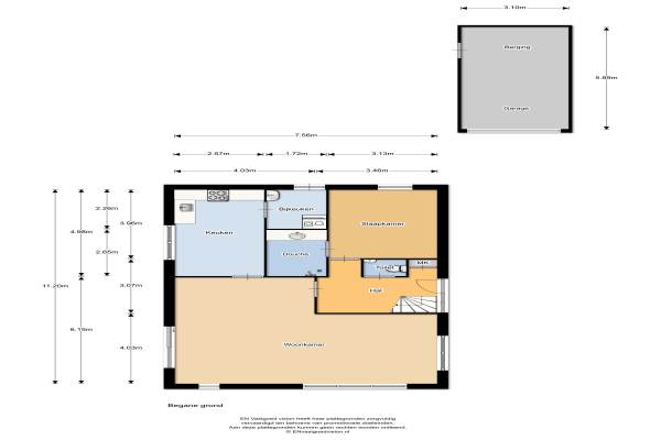
Het adres van deze woning uit 1993 is Hotel de Wereldstraat 6 te Almere. Het pand heeft een oppervlakte van 141m² en een perceeloppervlakte van 495m² en heeft 4 kamers kamers waarvan 3 slaapkamers. De geschatte waarde van deze woning is € 459.000.

Bekijk alle woningen in Verzetswijk

Gegevens van Villa, vrijstaande woning

Bouwjaar
1993
Geschatte waarde
€ 459.000
Oppervlakte
141 m2
Inhoud
450 m3
Aantal kamers
4 kamers
Slaapkamers
3
Badkamers
2 badkamers en 1 apart toilet
Soort bouw
Bestaande bouw
Eigendomssituatie
Volle eigendom
Ligging
Aan rustige weg, in woonwijk, vrij uitzicht en open ligging
Tuin
Tuin rondom

Voorzieningen in de buurt

Boodschappen0,6 km
Grote supermarkt0,7 km
Cafetaria0,6 km
Restaurant0,6 km
Huisarts0,8 km
Ziekenhuis2,2 km
Kinderdagverblijf0,4 km
BSO0,4 km
Alle voorzieningen in Verzetswijk

Binnenkijken bij Hotel de Wereldstraat 6 te Almere

Meer meldingen in deze omgeving

Binnenkijken bij
Zaterdag 21-2-2026
Kapitein de Langestraat 168, 1318DR Almere

112 melding
Donderdag 12-2-2026 om 08:24
Cornelis Vlotstraat, Almere

112 melding
Donderdag 12-2-2026 om 08:24
Cornelis Vlotstraat, Almere

Binnenkijken bij
Donderdag 12-2-2026
Groep Meelhuysenstraat 19, 1318CX Almere

112 melding
Dinsdag 10-2-2026 om 09:15
Helena Kuipers-Rietbergstraat, Almere

112 melding
Dinsdag 10-2-2026 om 09:15
Helena Kuipers-Rietbergstraat, Almere

Nieuw bedrijf
Februari 2026
Radio Oranjelaan 11, 1318AW Almere

Binnenkijken bij
Zondag 1-2-2026
Gustaaf Gelderstraat 9, 1318AZ Almere

Direct een e-mail ontvangen bij nieuwe meldingen in deze regio?

Meld je dan GRATIS aan voor de Oozo Alert service voor Verzetswijk

Instellen

Meer nieuws in Verzetswijk

Weten hoe eenvoudig het is om af te vallen? Zonder pillen en smeersels en zonder je in het zweet te werken!
Kijk op eenvoudig-afvallen.nl

© 2012 - 2026 OOZO.nl - info@oozo.nl - Gegevens verwijderen? | Disclaimer | Privacy statement