Woning Kruiskruid 16 Boskoop

Kruiskruid 16, 2771RA Boskoop

Ontvang updates voor Snijdelwijk

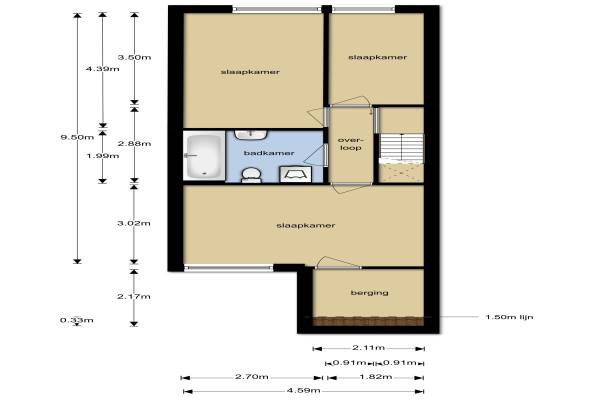
Het adres van deze woning uit 1975 is Kruiskruid 16 te Boskoop. Het pand heeft een oppervlakte van 123m² en een perceeloppervlakte van 111m² en heeft 6 kamers kamers waarvan 4 slaapkamers. De geschatte waarde van deze woning is € 245.000.

Bekijk alle woningen in Snijdelwijk

Gegevens van Eengezinswoning, tussenwoning

Bouwjaar
1975
Geschatte waarde
€ 245.000
Oppervlakte
123 m2
Inhoud
355 m3
Aantal kamers
6 kamers
Slaapkamers
4
Badkamers
1 badkamer en 1 apart toilet
Soort bouw
Bestaande bouw
Eigendomssituatie
Volle eigendom
Ligging
In woonwijk
Tuin
Achtertuin
Achtertuin
77 m² (15m diep en 5,1m breed)

Voorzieningen in de buurt

Boodschappen1,1 km
Grote supermarkt0,4 km
Cafetaria0,4 km
Restaurant1,0 km
Huisarts1,9 km
Ziekenhuis9,4 km
Kinderdagverblijf0,8 km
BSO0,8 km
Alle voorzieningen in Snijdelwijk

Binnenkijken bij Kruiskruid 16 te Boskoop

Meer meldingen in deze omgeving

112 melding
Zaterdag 25-4-2026 om 17:57
Lage Weide, 2771SZ Boskoop

Nieuw bedrijf
April 2026
Lage Weide 73, 2771SZ Boskoop

112 melding
Woensdag 22-4-2026 om 21:16
Snijdelwijklaan, 2771SX Boskoop

112 melding
Woensdag 22-4-2026 om 21:05
Snijdelwijklaan, 2771SX Boskoop

112 melding
Maandag 20-4-2026 om 07:53
Klaverblad, Boskoop

112 melding
Zaterdag 18-4-2026 om 01:31
Pastoor Daalmansplantsoen, Boskoop

112 melding
Zaterdag 18-4-2026 om 01:14
Pastoor Daalmansplantsoen, Boskoop

112 melding
Zaterdag 18-4-2026 om 01:06
Snijdelwijklaan, 2771SX Boskoop

Direct een e-mail ontvangen bij nieuwe meldingen in deze regio?

Meld je dan GRATIS aan voor de Oozo Alert service voor Snijdelwijk

Instellen

Meer nieuws in Snijdelwijk

Weten hoe eenvoudig het is om af te vallen? Zonder pillen en smeersels en zonder je in het zweet te werken!
Kijk op eenvoudig-afvallen.nl

© 2012 - 2026 OOZO.nl - info@oozo.nl - Gegevens verwijderen? | Disclaimer | Privacy statement