Woning Van Boetzelaerstraat 115 Alphen aan den Rijn

Van Boetzelaerstraat 115, 2406BE Alphen aan den Rijn

Ontvang updates voor Van Boetzelaerstraat

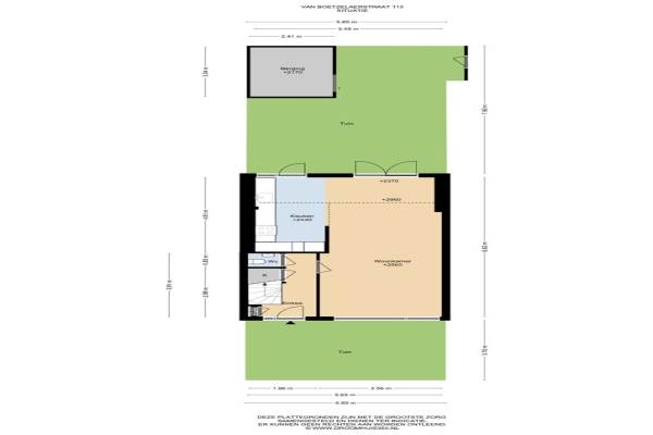
Het adres van deze woning uit 1965 is Van Boetzelaerstraat 115 te Alphen aan den Rijn. Het pand heeft een oppervlakte van 106m² en een perceeloppervlakte van 127m² en heeft 6 kamers kamers waarvan 3 slaapkamers. De geschatte waarde van deze woning is € 350.000.

Bekijk alle woningen in Van Boetzelaerstraat

Gegevens van Eengezinswoning

Bouwjaar
1965
Geschatte waarde
€ 350.000
Oppervlakte
106 m2
Inhoud
352 m3
Aantal kamers
6 kamers
Slaapkamers
3
Badkamers
1 badkamer
Soort bouw
Bestaande bouw
Eigendomssituatie
Volle eigendom
Tuin
Tuin
Achtertuin
46 m² (7,9 meter diep en 5,85 meter breed)

Voorzieningen in de buurt

Boodschappen0,4 km
Grote supermarkt0,5 km
Cafetaria0,4 km
Restaurant0,3 km
Huisarts0,4 km
Ziekenhuis2,7 km
Kinderdagverblijf0,3 km
BSO0,3 km
Alle voorzieningen in Van Boetzelaerstraat

Binnenkijken bij Van Boetzelaerstraat 115 te Alphen aan den Rijn

Meer meldingen in deze omgeving

112 melding
Dinsdag 11-11-2025 om 16:17
Bilderdijkstraat, Alphen aan den Rijn

112 melding
Dinsdag 11-11-2025 om 13:15
Bilderdijkstraat, Alphen aan den Rijn

Binnenkijken bij
Dinsdag 11-11-2025
Van Boetzelaerstraat 21A, 2406BC Alphen aan den Rijn

Nieuw bedrijf
November 2025
Vondelstraat 17, 2406XG Alphen aan den Rijn

112 melding
Woensdag 5-11-2025 om 23:10
Verlengde Marnixstraat, 2406VV Alphen aan den Rijn

112 melding
Zaterdag 1-11-2025 om 00:02
Verlengde Marnixstraat, 2406VV Alphen aan den Rijn

Nieuw bedrijf
Oktober 2025
Concordiastraat 2, 2406XZ Alphen aan den Rijn

Nieuw bedrijf
Oktober 2025
De Aarhof 5, 2406BT Alphen aan den Rijn

Direct een e-mail ontvangen bij nieuwe meldingen in deze regio?

Meld je dan GRATIS aan voor de Oozo Alert service voor Van Boetzelaerstraat

Instellen

Meer nieuws in Van Boetzelaerstraat

Weten hoe eenvoudig het is om af te vallen? Zonder pillen en smeersels en zonder je in het zweet te werken!
Kijk op eenvoudig-afvallen.nl

© 2012 - 2025 OOZO.nl - info@oozo.nl - Gegevens verwijderen? | Disclaimer | Privacy statement