Woning Binkhorst 93 Alphen aan den Rijn

Binkhorst 93, 2402ME Alphen aan den Rijn

Ontvang updates voor Horstenbuurt-Zuid

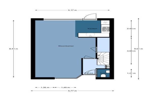
Het adres van deze woning uit 1985 is Binkhorst 93 te Alphen aan den Rijn. Het pand heeft een oppervlakte van 111m² en heeft 5 kamers kamers waarvan 4 slaapkamers. De geschatte waarde van deze woning is € 325.000.

Bekijk alle woningen in Horstenbuurt-Zuid

Gegevens van Eengezinswoning

Bouwjaar
1985
Geschatte waarde
€ 325.000
Oppervlakte
111 m2
Inhoud
402 m3
Aantal kamers
5 kamers
Slaapkamers
4
Badkamers
2 badkamers en 1 apart toilet
Soort bouw
Bestaande bouw
Tuin
Tuin
Achtertuin
50 m² (10 meter diep en 5 meter breed)

Voorzieningen in de buurt

Boodschappen0,5 km
Grote supermarkt0,5 km
Cafetaria0,6 km
Restaurant0,6 km
Huisarts0,8 km
Ziekenhuis1,4 km
Kinderdagverblijf0,8 km
BSO0,5 km
Alle voorzieningen in Horstenbuurt-Zuid

Binnenkijken bij Binkhorst 93 te Alphen aan den Rijn

Meer meldingen in deze omgeving

Nieuw bedrijf
Oktober 2025
Magerhorst 28, 2402LP Alphen aan den Rijn

Nieuw bedrijf
Oktober 2025
Havixhorst 81, 2402ML Alphen aan den Rijn

Binnenkijken bij
Donderdag 2-10-2025
Nettelhorst 24, 2402LS Alphen aan den Rijn

112 melding
Maandag 29-9-2025 om 18:03
Magerhorst, Alphen aan den Rijn

112 melding
Maandag 29-9-2025 om 09:45
Binkhorst, Alphen aan den Rijn

Binnenkijken bij
Vrijdag 19-9-2025
Schelfhorst 13, 2402LA Alphen aan den Rijn

112 melding
Zaterdag 6-9-2025 om 20:52
Magerhorst, Alphen aan den Rijn

112 melding
Donderdag 21-8-2025 om 09:39
Schelfhorst, Alphen aan den Rijn

Direct een e-mail ontvangen bij nieuwe meldingen in deze regio?

Meld je dan GRATIS aan voor de Oozo Alert service voor Horstenbuurt-Zuid

Instellen

Meer nieuws in Horstenbuurt-Zuid

Weten hoe eenvoudig het is om af te vallen? Zonder pillen en smeersels en zonder je in het zweet te werken!
Kijk op eenvoudig-afvallen.nl

© 2012 - 2025 OOZO.nl - info@oozo.nl - Gegevens verwijderen? | Disclaimer | Privacy statement