Woning Aquamarijn 31 Alphen aan den Rijn

Aquamarijn 31, 2403DR Alphen aan den Rijn

Ontvang updates voor Edelstenenbuurt

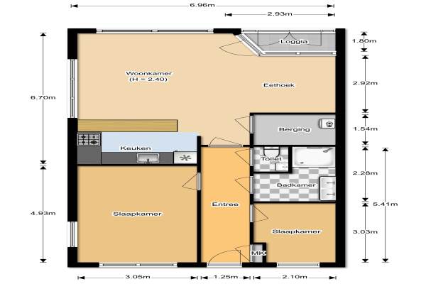
Het adres van deze woning uit 1997 is Aquamarijn 31 te Alphen aan den Rijn. Het pand heeft een oppervlakte van 80m² en heeft 3 kamers kamers waarvan 2 slaapkamers. De geschatte waarde van deze woning is € 165.000.

Bekijk alle woningen in Edelstenenbuurt

Gegevens van Galerijflat (appartement)

Bouwjaar
1997
Geschatte waarde
€ 165.000
Oppervlakte
80 m2
Inhoud
216 m3
Aantal kamers
3 kamers
Slaapkamers
2
Badkamers
1 badkamer en 1 apart toilet
Soort bouw
Bestaande bouw
Eigendomssituatie
Volle eigendom
Ligging
In woonwijk

Voorzieningen in de buurt

Boodschappen0,9 km
Grote supermarkt0,9 km
Cafetaria0,6 km
Restaurant0,8 km
Huisarts0,4 km
Ziekenhuis1,5 km
Kinderdagverblijf0,8 km
BSO0,8 km
Alle voorzieningen in Edelstenenbuurt

Binnenkijken bij Aquamarijn 31 te Alphen aan den Rijn

Meer meldingen in deze omgeving

112 melding
Dinsdag 28-10-2025 om 09:25
Amethiststraat, 2403DX Alphen aan den Rijn

112 melding
Maandag 27-10-2025 om 04:23
Smaragdstraat, Alphen aan den Rijn

112 melding
Vrijdag 24-10-2025 om 18:20
Diamantstraat, Alphen aan den Rijn

112 melding
Vrijdag 24-10-2025 om 15:20
Barnsteenstraat, Alphen aan den Rijn

112 melding
Woensdag 22-10-2025 om 22:53
Amethiststraat, 2403DX Alphen aan den Rijn

Binnenkijken bij
Zondag 19-10-2025
Saffierstraat 143, 2403XP Alphen aan den Rijn

112 melding
Zaterdag 18-10-2025 om 23:59
Toermalijnstraat, 2403DW Alphen aan den Rijn

112 melding
Zaterdag 18-10-2025 om 19:43
Opaalstraat, 2403XK Alphen aan den Rijn

Direct een e-mail ontvangen bij nieuwe meldingen in deze regio?

Meld je dan GRATIS aan voor de Oozo Alert service voor Edelstenenbuurt

Instellen

Meer nieuws in Edelstenenbuurt

Weten hoe eenvoudig het is om af te vallen? Zonder pillen en smeersels en zonder je in het zweet te werken!
Kijk op eenvoudig-afvallen.nl

© 2012 - 2025 OOZO.nl - info@oozo.nl - Gegevens verwijderen? | Disclaimer | Privacy statement