Woning Klaproosstraat 68 Alphen aan den Rijn

Klaproosstraat 68, 2403EZ Alphen aan den Rijn

Ontvang updates voor Weidebloemenbuurt-Zuid

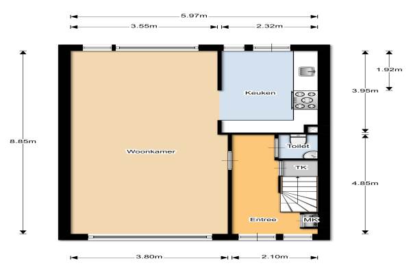
Het adres van deze woning uit 1971 is Klaproosstraat 68 te Alphen aan den Rijn. Het pand heeft een oppervlakte van 134m² en een perceeloppervlakte van 144m² en heeft 6 kamers kamers waarvan 5 slaapkamers. De geschatte waarde van deze woning is € 259.000.

Bekijk alle woningen in Weidebloemenbuurt-Zuid

Gegevens van Eengezinswoning, tussenwoning

Bouwjaar
1971
Geschatte waarde
€ 259.000
Oppervlakte
134 m2
Inhoud
403 m3
Aantal kamers
6 kamers
Slaapkamers
5
Badkamers
1 apart toilet
Soort bouw
Bestaande bouw
Eigendomssituatie
Volle eigendom
Ligging
Aan rustige weg, in woonwijk en beschutte ligging
Tuin
Achtertuin en voortuin
Achtertuin
64 m² (10,5m diep en 6,1m breed)

Voorzieningen in de buurt

Boodschappen1,1 km
Grote supermarkt1,1 km
Cafetaria0,7 km
Restaurant0,7 km
Huisarts0,6 km
Ziekenhuis2,1 km
Kinderdagverblijf0,8 km
BSO0,7 km
Alle voorzieningen in Weidebloemenbuurt-Zuid

Binnenkijken bij Klaproosstraat 68 te Alphen aan den Rijn

Meer meldingen in deze omgeving

Nieuw bedrijf
November 2025
Klaproosstraat 71, 2403EW Alphen aan den Rijn

Nieuw bedrijf
November 2025
Klaproosstraat 71, 2403EW Alphen aan den Rijn

112 melding
Zaterdag 15-11-2025 om 12:45
Hoefbladstraat, Alphen aan den Rijn

Nieuw bedrijf
November 2025
Boterbloemweg 29, 2403TR Alphen aan den Rijn

112 melding
Maandag 10-11-2025 om 00:40
Grashof, Alphen aan den Rijn

112 melding
Maandag 3-11-2025 om 07:09
Wikkestraat, Alphen aan den Rijn

Binnenkijken bij
Woensdag 29-10-2025
Helmhof 2, 2403VN Alphen aan den Rijn

Faillissement
Dinsdag 28-10-2025
Bremstraat 75, 2403EL Alphen aan den Rijn

Direct een e-mail ontvangen bij nieuwe meldingen in deze regio?

Meld je dan GRATIS aan voor de Oozo Alert service voor Weidebloemenbuurt-Zuid

Instellen

Meer nieuws in Weidebloemenbuurt-Zuid

Weten hoe eenvoudig het is om af te vallen? Zonder pillen en smeersels en zonder je in het zweet te werken!
Kijk op eenvoudig-afvallen.nl

© 2012 - 2025 OOZO.nl - info@oozo.nl - Gegevens verwijderen? | Disclaimer | Privacy statement