Woning Billitonstraat 7 Amersfoort

Billitonstraat 7, 3818CM Amersfoort

Ontvang updates voor Indische Buurt

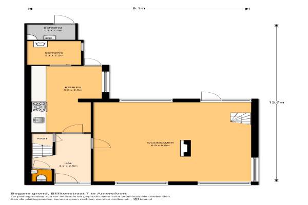
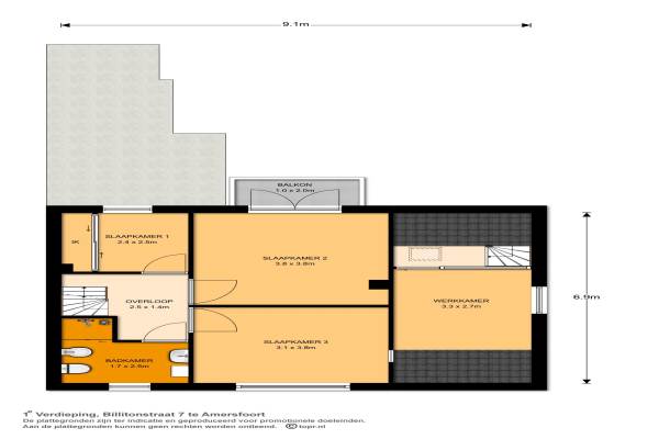
Het adres van deze woning uit 1953 is Billitonstraat 7 te Amersfoort. Het pand heeft een oppervlakte van 154m² en een perceeloppervlakte van 395m² en heeft 5 kamers kamers waarvan 4 slaapkamers. De geschatte waarde van deze woning is € 525.000.

Bekijk alle woningen in Indische Buurt

Gegevens van Eengezinswoning, 2-onder-1-kapwoning

Bouwjaar
1953
Geschatte waarde
€ 525.000
Oppervlakte
154 m2
Inhoud
500 m3
Aantal kamers
5 kamers
Slaapkamers
4
Badkamers
1 badkamer en 1 apart toilet
Soort bouw
Bestaande bouw
Eigendomssituatie
Volle eigendom
Ligging
Aan rustige weg, in woonwijk en in bosrijke omgeving
Tuin
Achtertuin, voortuin en zijtuin
Achtertuin
128 m² (9,5m diep en 13,5m breed)

Voorzieningen in de buurt

Boodschappen0,6 km
Grote supermarkt0,9 km
Cafetaria0,7 km
Restaurant0,7 km
Huisarts1,2 km
Ziekenhuis4,8 km
Kinderdagverblijf0,7 km
BSO0,3 km
Alle voorzieningen in Indische Buurt

Binnenkijken bij Billitonstraat 7 te Amersfoort

Meer meldingen in deze omgeving

Nieuw bedrijf
November 2025
Balistraat 28, 3818AK Amersfoort

Binnenkijken bij
Dinsdag 11-11-2025
Soembastraat 7, 3818AL Amersfoort

Binnenkijken bij
Dinsdag 11-11-2025
Ceramstraat 6, 3818CW Amersfoort

Nieuw bedrijf
November 2025
Timorstraat 24, 3818CL Amersfoort

Binnenkijken bij
Zaterdag 11-10-2025
Ceramstraat 12, 3818CW Amersfoort

Binnenkijken bij
Zaterdag 11-10-2025
Balistraat 31, 3818AJ Amersfoort

Binnenkijken bij
Donderdag 9-10-2025
Borneoplein 22, 3818AH Amersfoort

Nieuw bedrijf
Oktober 2025
Ceramstraat 15, 3818CW Amersfoort

Direct een e-mail ontvangen bij nieuwe meldingen in deze regio?

Meld je dan GRATIS aan voor de Oozo Alert service voor Indische Buurt

Instellen

Meer nieuws in Indische Buurt

Weten hoe eenvoudig het is om af te vallen? Zonder pillen en smeersels en zonder je in het zweet te werken!
Kijk op eenvoudig-afvallen.nl

© 2012 - 2025 OOZO.nl - info@oozo.nl - Gegevens verwijderen? | Disclaimer | Privacy statement