Woning Hogeweg 7 Amersfoort

Hogeweg 7, 3814CA Amersfoort

Ontvang updates voor Columbusweg

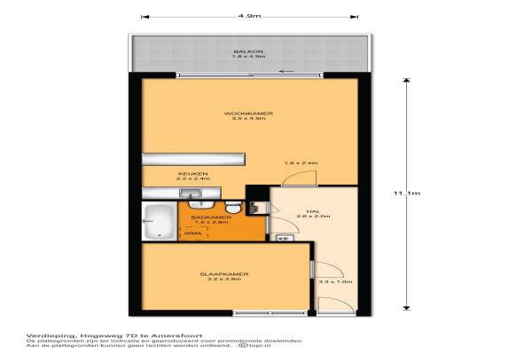
Het adres van deze woning uit 1975 is Hogeweg 7 te Amersfoort. Het pand heeft een oppervlakte van 54m² en heeft 2 kamers kamers waarvan 1 slaapkamers. De geschatte waarde van deze woning is € 169.000.

Bekijk alle woningen in Columbusweg

Gegevens van Galerijflat (appartement)

Bouwjaar
1975
Geschatte waarde
€ 169.000
Oppervlakte
54 m2
Inhoud
135 m3
Aantal kamers
2 kamers
Slaapkamers
1
Badkamers
1 badkamer
Soort bouw
Bestaande bouw
Eigendomssituatie
Volle eigendom
Ligging
In centrum en vrij uitzicht

Voorzieningen in de buurt

Boodschappen0,3 km
Grote supermarkt0,3 km
Cafetaria0,3 km
Restaurant0,3 km
Huisarts0,6 km
Ziekenhuis3,2 km
Kinderdagverblijf0,5 km
BSO0,7 km
Alle voorzieningen in Columbusweg

Binnenkijken bij Hogeweg 7 te Amersfoort

Meer meldingen in deze omgeving

Faillissement
Woensdag 4-2-2026
Ringweg-Kruiskamp 104C, 3814WS Amersfoort

Faillissement
Maandag 26-1-2026
Ringweg-Kruiskamp 104C, 3814WS Amersfoort

Nieuw bedrijf
Januari 2026
Van Randwijcklaan 105N, 3814AG Amersfoort

Binnenkijken bij
Donderdag 15-1-2026
Cabralstraat 17, 3814WL Amersfoort

112 melding
Zondag 11-1-2026 om 20:57
Columbusweg, Amersfoort

Binnenkijken bij
Zaterdag 10-1-2026
Cabralstraat 33, 3814WL Amersfoort

Faillissement
Woensdag 7-1-2026
Ringweg-Kruiskamp 104C, 3814WS Amersfoort

Binnenkijken bij
Woensdag 7-1-2026
Columbusweg 95, 3814WD Amersfoort

Direct een e-mail ontvangen bij nieuwe meldingen in deze regio?

Meld je dan GRATIS aan voor de Oozo Alert service voor Columbusweg

Instellen

Meer nieuws in Columbusweg

Weten hoe eenvoudig het is om af te vallen? Zonder pillen en smeersels en zonder je in het zweet te werken!
Kijk op eenvoudig-afvallen.nl

© 2012 - 2026 OOZO.nl - info@oozo.nl - Gegevens verwijderen? | Disclaimer | Privacy statement