Woning Ringweg-Kruiskamp 72h Amersfoort

Ringweg-Kruiskamp 72h, 3814TE Amersfoort

Ontvang updates voor Neptunusplein

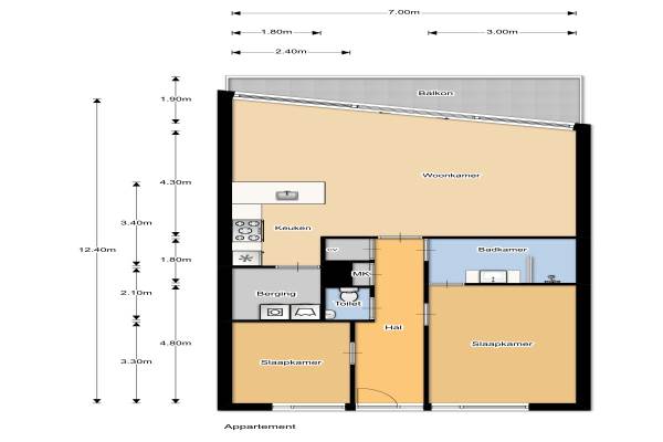
Het adres van deze woning uit 2008 is Ringweg-Kruiskamp 72h te Amersfoort. Het pand heeft een oppervlakte van 84m² en heeft 3 kamers kamers waarvan 2 slaapkamers. De geschatte waarde van deze woning is € 229.000.

Bekijk alle woningen in Neptunusplein

Gegevens van Galerijflat (appartement)

Bouwjaar
2008
Geschatte waarde
€ 229.000
Oppervlakte
84 m2
Inhoud
250 m3
Aantal kamers
3 kamers
Slaapkamers
2
Badkamers
1 badkamer en 1 apart toilet
Soort bouw
Bestaande bouw
Eigendomssituatie
Volle eigendom
Ligging
In woonwijk en vrij uitzicht

Voorzieningen in de buurt

Boodschappen0,2 km
Grote supermarkt0,2 km
Cafetaria0,2 km
Restaurant0,2 km
Huisarts0,3 km
Ziekenhuis2,9 km
Kinderdagverblijf0,3 km
BSO0,5 km
Alle voorzieningen in Neptunusplein

Binnenkijken bij Ringweg-Kruiskamp 72h te Amersfoort

Meer meldingen in deze omgeving

112 melding
Zaterdag 6-12-2025 om 18:33
Van Linschotenstraat, 3814PN Amersfoort

112 melding
Zaterdag 6-12-2025 om 18:33
Van Linschotenstraat, 3814PN Amersfoort

Binnenkijken bij
Zaterdag 29-11-2025
Van Spilbergenstraat 29A, 3814VL Amersfoort

Binnenkijken bij
Vrijdag 21-11-2025
Neptunusplein 54A, 3814BR Amersfoort

Binnenkijken bij
Vrijdag 14-11-2025
De Keyserstraat 6, 3814VE Amersfoort

Nieuw bedrijf
November 2025
Methorststraat 1, 3814BL Amersfoort

Nieuw bedrijf
November 2025
Methorststraat 12, 3814BM Amersfoort

Nieuw bedrijf
November 2025
Rijpstraat 97, 3814TT Amersfoort

Direct een e-mail ontvangen bij nieuwe meldingen in deze regio?

Meld je dan GRATIS aan voor de Oozo Alert service voor Neptunusplein

Instellen

Meer nieuws in Neptunusplein

Weten hoe eenvoudig het is om af te vallen? Zonder pillen en smeersels en zonder je in het zweet te werken!
Kijk op eenvoudig-afvallen.nl

© 2012 - 2025 OOZO.nl - info@oozo.nl - Gegevens verwijderen? | Disclaimer | Privacy statement