Woning Van Assenraadstraat 2 Amersfoort

Van Assenraadstraat 2, 3814BK Amersfoort

Ontvang updates voor Neptunusplein

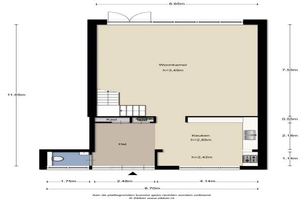
Het adres van deze woning uit 1928 is Van Assenraadstraat 2 te Amersfoort. Het pand heeft een oppervlakte van 137m² en een perceeloppervlakte van 281m² en heeft 5 kamers kamers waarvan 3 slaapkamers. De geschatte waarde van deze woning is € 500.000.

Bekijk alle woningen in Neptunusplein

Gegevens van Eengezinswoning, tussenwoning

Bouwjaar
1928
Geschatte waarde
€ 500.000
Oppervlakte
137 m2
Inhoud
576 m3
Aantal kamers
5 kamers
Slaapkamers
3
Badkamers
1 badkamer en 1 apart toilet
Soort bouw
Bestaande bouw
Eigendomssituatie
Volle eigendom
Ligging
Aan rustige weg en in woonwijk
Tuin
Achtertuin
Achtertuin
150 m² (25m diep en 6m breed)

Voorzieningen in de buurt

Boodschappen0,2 km
Grote supermarkt0,2 km
Cafetaria0,2 km
Restaurant0,2 km
Huisarts0,3 km
Ziekenhuis2,9 km
Kinderdagverblijf0,3 km
BSO0,5 km
Alle voorzieningen in Neptunusplein

Binnenkijken bij Van Assenraadstraat 2 te Amersfoort

Meer meldingen in deze omgeving

Binnenkijken bij
Vrijdag 10-4-2026
Van Linschotenstraat 23, 3814PN Amersfoort

Nieuw bedrijf
April 2026
Methorststraat 25, 3814BL Amersfoort

Nieuw bedrijf
April 2026
Van Spilbergenstraat 3A, 3814VK Amersfoort

Nieuw bedrijf
April 2026
Van Assenraadstraat 2C, 3814BK Amersfoort

Nieuw bedrijf
April 2026
Van Assenraadstraat 2C, 3814BK Amersfoort

112 melding
Maandag 6-4-2026 om 18:46
Scheltussingel, Amersfoort

Binnenkijken bij
Zondag 29-3-2026
Neptunusplein 40B, 3814BR Amersfoort

Binnenkijken bij
Donderdag 26-3-2026
Van Westreenenstraat 5, 3814BN Amersfoort

Direct een e-mail ontvangen bij nieuwe meldingen in deze regio?

Meld je dan GRATIS aan voor de Oozo Alert service voor Neptunusplein

Instellen

Meer nieuws in Neptunusplein

Weten hoe eenvoudig het is om af te vallen? Zonder pillen en smeersels en zonder je in het zweet te werken!
Kijk op eenvoudig-afvallen.nl

© 2012 - 2026 OOZO.nl - info@oozo.nl - Gegevens verwijderen? | Disclaimer | Privacy statement