Woning Fluitekamp 104 Hoogland

Fluitekamp 104, 3828WJ Hoogland

Ontvang updates voor Bieshaar-Noord

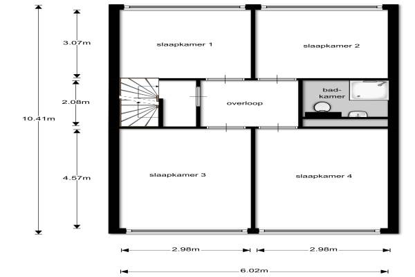
Het adres van deze woning uit 1972 is Fluitekamp 104 te Hoogland. Het pand heeft een oppervlakte van 161m² en een perceeloppervlakte van 175m² en heeft 8 kamers kamers waarvan 6 slaapkamers. De geschatte waarde van deze woning is € 309.000.

Bekijk alle woningen in Bieshaar-Noord

Gegevens van Eengezinswoning, tussenwoning

Bouwjaar
1972
Geschatte waarde
€ 309.000
Oppervlakte
161 m2
Inhoud
480 m3
Aantal kamers
8 kamers
Slaapkamers
6
Badkamers
1 badkamer
Soort bouw
Bestaande bouw
Eigendomssituatie
Volle eigendom
Ligging
In centrum en in woonwijk
Tuin
Achtertuin
Achtertuin
79 m² (12,5m diep en 6,3m breed)

Voorzieningen in de buurt

Boodschappen0,6 km
Grote supermarkt0,7 km
Cafetaria0,6 km
Restaurant0,6 km
Huisarts0,7 km
Ziekenhuis2,7 km
Kinderdagverblijf0,6 km
BSO0,6 km
Alle voorzieningen in Bieshaar-Noord

Binnenkijken bij Fluitekamp 104 te Hoogland

Meer meldingen in deze omgeving

Binnenkijken bij
Vrijdag 14-11-2025
Kolkrijst 29, 3828EJ Hoogland

Nieuw bedrijf
November 2025
Breelandhof 11, 3828VL Hoogland

Binnenkijken bij
Dinsdag 11-11-2025
Zandkamp 295, 3828GT Hoogland

Nieuw bedrijf
November 2025
Breeland 108, 3828VG Hoogland

112 melding
Donderdag 23-10-2025 om 11:55
Bunschoterstraat, 3828NN Hoogland

112 melding
Donderdag 23-10-2025 om 11:55
Bunschoterstraat, 3828NN Hoogland

Binnenkijken bij
Donderdag 9-10-2025
Breeland 65, 3828VD Hoogland

Binnenkijken bij
Donderdag 9-10-2025
Kolkrijst 79, 3828EL Hoogland

Direct een e-mail ontvangen bij nieuwe meldingen in deze regio?

Meld je dan GRATIS aan voor de Oozo Alert service voor Bieshaar-Noord

Instellen

Meer nieuws in Bieshaar-Noord

Weten hoe eenvoudig het is om af te vallen? Zonder pillen en smeersels en zonder je in het zweet te werken!
Kijk op eenvoudig-afvallen.nl

© 2012 - 2025 OOZO.nl - info@oozo.nl - Gegevens verwijderen? | Disclaimer | Privacy statement