Woning Linnaeus-serre 7 Amersfoort

Linnaeus-serre 7, 3823DL Amersfoort

Ontvang updates voor Gesloten Stad

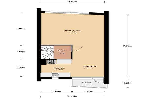
Het adres van deze woning uit 1993 is Linnaeus-serre 7 te Amersfoort. Het pand heeft een oppervlakte van 120m² en heeft 5 kamers kamers waarvan 4 slaapkamers. De geschatte waarde van deze woning is € 250.000.

Bekijk alle woningen in Gesloten Stad

Gegevens van Eengezinswoning, tussenwoning

Bouwjaar
1993
Geschatte waarde
€ 250.000
Oppervlakte
120 m2
Inhoud
403 m3
Aantal kamers
5 kamers
Slaapkamers
4
Badkamers
1 apart toilet
Soort bouw
Bestaande bouw
Eigendomssituatie
Volle eigendom
Ligging
In woonwijk
Tuin
Achtertuin
Achtertuin
25 m² (5m diep en 5m breed)

Voorzieningen in de buurt

Boodschappen0,8 km
Grote supermarkt0,7 km
Cafetaria0,8 km
Restaurant1,0 km
Huisarts0,6 km
Ziekenhuis3,8 km
Kinderdagverblijf0,4 km
BSO0,4 km
Alle voorzieningen in Gesloten Stad

Binnenkijken bij Linnaeus-serre 7 te Amersfoort

Meer meldingen in deze omgeving

Binnenkijken bij
Dinsdag 11-11-2025
De Ontdekking 3B, 3823DT Amersfoort

Nieuw bedrijf
Oktober 2025
Gesloten Stad 22, 3823DP Amersfoort

Binnenkijken bij
Vrijdag 10-10-2025
Heimans-serre 14, 3823DE Amersfoort

Nieuw bedrijf
Oktober 2025
Karnak 2, 3823KP Amersfoort

112 melding
Woensdag 24-9-2025 om 20:01
Hugo de Vries-serre, 3823DM Amersfoort

112 melding
Woensdag 24-9-2025 om 20:01
Hugo de Vries-serre, 3823DM Amersfoort

112 melding
Zondag 21-9-2025 om 02:42
Dodoens-serre, 3823DJ Amersfoort

112 melding
Zondag 21-9-2025 om 02:38
Dodoens-serre, 3823DJ Amersfoort

Direct een e-mail ontvangen bij nieuwe meldingen in deze regio?

Meld je dan GRATIS aan voor de Oozo Alert service voor Gesloten Stad

Instellen

Meer nieuws in Gesloten Stad

Weten hoe eenvoudig het is om af te vallen? Zonder pillen en smeersels en zonder je in het zweet te werken!
Kijk op eenvoudig-afvallen.nl

© 2012 - 2025 OOZO.nl - info@oozo.nl - Gegevens verwijderen? | Disclaimer | Privacy statement