Woning De Balken 13 Amersfoort

De Balken 13, 3823VE Amersfoort

Ontvang updates voor Het Hallehuis

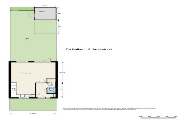
Het adres van deze woning uit 1992 is De Balken 13 te Amersfoort. Het pand heeft een oppervlakte van 109m² en een perceeloppervlakte van 109m² en heeft 5 kamers kamers waarvan 4 slaapkamers. De geschatte waarde van deze woning is € 225.000.

Bekijk alle woningen in Het Hallehuis

Gegevens van Eengezinswoning, tussenwoning

Bouwjaar
1992
Geschatte waarde
€ 225.000
Oppervlakte
109 m2
Inhoud
340 m3
Aantal kamers
5 kamers
Slaapkamers
4
Badkamers
1 badkamer en 1 apart toilet
Soort bouw
Bestaande bouw
Eigendomssituatie
Volle eigendom
Ligging
In woonwijk
Tuin
Achtertuin en voortuin
Achtertuin
60 m² (12m diep en 5m breed)

Voorzieningen in de buurt

Boodschappen0,8 km
Grote supermarkt0,9 km
Cafetaria0,8 km
Restaurant0,9 km
Huisarts1,3 km
Ziekenhuis4,6 km
Kinderdagverblijf0,9 km
BSO0,9 km
Alle voorzieningen in Het Hallehuis

Binnenkijken bij De Balken 13 te Amersfoort

Meer meldingen in deze omgeving

Nieuw bedrijf
November 2025
De Baander 58, 3823VK Amersfoort

Nieuw bedrijf
November 2025
Het Hallehuis 81, 3823VH Amersfoort

Nieuw bedrijf
November 2025
Het Hallehuis 21, 3823VH Amersfoort

Nieuw bedrijf
November 2025
Het Hallehuis 3, 3823VH Amersfoort

Binnenkijken bij
Dinsdag 11-11-2025
Rietkreek 8, 3823JS Amersfoort

Binnenkijken bij
Donderdag 30-10-2025
Steintjeskreek 5, 3823JP Amersfoort

112 melding
Zaterdag 25-10-2025 om 23:57
Het Hofslot, 3823VV Amersfoort

112 melding
Zondag 19-10-2025 om 09:49
De Slieten, 3823VZ Amersfoort

Direct een e-mail ontvangen bij nieuwe meldingen in deze regio?

Meld je dan GRATIS aan voor de Oozo Alert service voor Het Hallehuis

Instellen

Meer nieuws in Het Hallehuis

Weten hoe eenvoudig het is om af te vallen? Zonder pillen en smeersels en zonder je in het zweet te werken!
Kijk op eenvoudig-afvallen.nl

© 2012 - 2025 OOZO.nl - info@oozo.nl - Gegevens verwijderen? | Disclaimer | Privacy statement