Woning Lorentzstraat 37 Amersfoort

Lorentzstraat 37, 3817XJ Amersfoort

Ontvang updates voor Bosweg

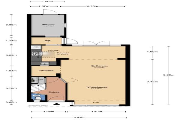
Het adres van deze woning uit 1939 is Lorentzstraat 37 te Amersfoort. Het pand heeft een oppervlakte van 104m² en een perceeloppervlakte van 144m² en heeft 4 kamers kamers waarvan 2 slaapkamers. De geschatte waarde van deze woning is € 389.000.

Bekijk alle woningen in Bosweg

Gegevens van Eengezinswoning, tussenwoning

Bouwjaar
1939
Geschatte waarde
€ 389.000
Oppervlakte
104 m2
Inhoud
355 m3
Aantal kamers
4 kamers
Slaapkamers
2
Badkamers
1 badkamer en 1 apart toilet
Soort bouw
Bestaande bouw
Eigendomssituatie
Volle eigendom
Ligging
Aan rustige weg en in woonwijk
Tuin
Achtertuin en voortuin
Achtertuin
60 m² (10m diep en 6m breed)

Voorzieningen in de buurt

Boodschappen0,4 km
Grote supermarkt0,8 km
Cafetaria0,4 km
Restaurant0,4 km
Huisarts0,3 km
Ziekenhuis4,0 km
Kinderdagverblijf0,3 km
BSO0,8 km
Alle voorzieningen in Bosweg

Binnenkijken bij Lorentzstraat 37 te Amersfoort

Meer meldingen in deze omgeving

112 melding
Vrijdag 7-11-2025 om 13:06
Archimedesstraat, 3817XN Amersfoort

112 melding
Vrijdag 7-11-2025 om 13:06
Archimedesstraat, 3817XN Amersfoort

Onroerend goed
Woensdag 29-10-2025
Everard Meysterweg 54-A, 3817HE Amersfoort

Binnenkijken bij
Woensdag 29-10-2025
Arnhemseweg-Zuid 226, 3817CN Amersfoort

112 melding
Vrijdag 24-10-2025 om 13:11
Zandbergenlaan, Amersfoort

Binnenkijken bij
Zondag 19-10-2025
Bosweg 19, 3817ZA Amersfoort

Nieuw bedrijf
Oktober 2025
Stephensonstraat 36, 3817JC Amersfoort

Binnenkijken bij
Zaterdag 11-10-2025
Arnhemseweg-Zuid 171, 3817CE Amersfoort

Direct een e-mail ontvangen bij nieuwe meldingen in deze regio?

Meld je dan GRATIS aan voor de Oozo Alert service voor Bosweg

Instellen

Meer nieuws in Bosweg

Weten hoe eenvoudig het is om af te vallen? Zonder pillen en smeersels en zonder je in het zweet te werken!
Kijk op eenvoudig-afvallen.nl

© 2012 - 2025 OOZO.nl - info@oozo.nl - Gegevens verwijderen? | Disclaimer | Privacy statement