Woning Réaumurstraat 21 Amersfoort

Réaumurstraat 21, 3817ZK Amersfoort

Ontvang updates voor Bosweg

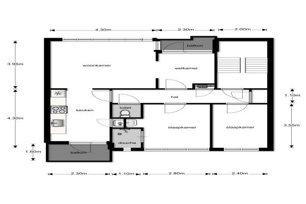
Het adres van deze woning uit 1954 is Réaumurstraat 21 te Amersfoort. Het pand heeft een oppervlakte van 69m² en heeft 4 kamers kamers waarvan 2 slaapkamers.

Bekijk alle woningen in Bosweg

Gegevens van Portiekflat (appartement)

Bouwjaar
1954
Geschatte waarde
€ 0
Oppervlakte
69 m2
Inhoud
195 m3
Aantal kamers
4 kamers
Slaapkamers
2
Badkamers
1 apart toilet
Soort bouw
Bestaande bouw
Eigendomssituatie
Volle eigendom
Ligging
Aan bosrand, aan rustige weg, in woonwijk, vrij uitzicht, open ligging en in bosrijke omgeving

Voorzieningen in de buurt

Boodschappen0,4 km
Grote supermarkt0,8 km
Cafetaria0,4 km
Restaurant0,4 km
Huisarts0,3 km
Ziekenhuis4,0 km
Kinderdagverblijf0,3 km
BSO0,8 km
Alle voorzieningen in Bosweg

Binnenkijken bij Réaumurstraat 21 te Amersfoort

Meer meldingen in deze omgeving

Binnenkijken bij
Dinsdag 17-3-2026
Everard Meysterweg 40, 3817HE Amersfoort

Binnenkijken bij
Dinsdag 17-3-2026
Arnhemseweg-Zuid 296, 3817CR Amersfoort

Binnenkijken bij
Zaterdag 14-3-2026
Arnhemseweg-Zuid 222, 3817CN Amersfoort

Nieuw bedrijf
Maart 2026
Celsiusstraat 36, 3817XG Amersfoort

Binnenkijken bij
Woensdag 4-3-2026
Zandbergenlaan 101, 3817GW Amersfoort

Binnenkijken bij
Vrijdag 27-2-2026
Celsiusstraat 71, 3817XE Amersfoort

Binnenkijken bij
Woensdag 25-2-2026
Fahrenheitstraat 1, 3817WB Amersfoort

Faillissement
Dinsdag 17-2-2026
Lorentzstraat 15, 3817XJ Amersfoort

Direct een e-mail ontvangen bij nieuwe meldingen in deze regio?

Meld je dan GRATIS aan voor de Oozo Alert service voor Bosweg

Instellen

Meer nieuws in Bosweg

Weten hoe eenvoudig het is om af te vallen? Zonder pillen en smeersels en zonder je in het zweet te werken!
Kijk op eenvoudig-afvallen.nl

© 2012 - 2026 OOZO.nl - info@oozo.nl - Gegevens verwijderen? | Disclaimer | Privacy statement