Woning Réaumurstraat 29 Amersfoort

Réaumurstraat 29, 3817ZL Amersfoort

Ontvang updates voor Bosweg

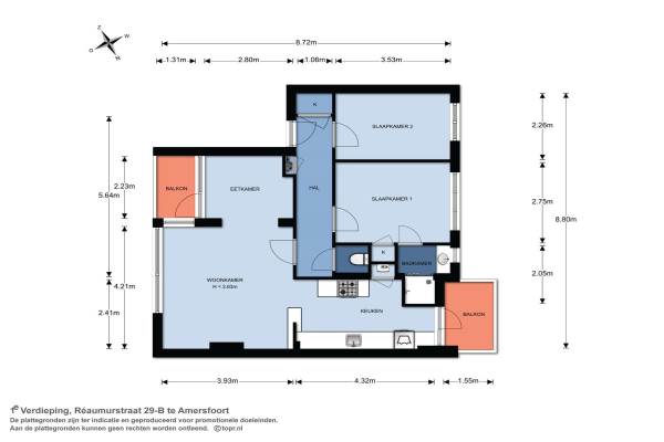
Het adres van deze woning uit 1955 is Réaumurstraat 29 te Amersfoort. Het pand heeft een oppervlakte van 65m² en heeft 4 kamers kamers waarvan 2 slaapkamers. De geschatte waarde van deze woning is € 192.500.

Bekijk alle woningen in Bosweg

Gegevens van Portiekwoning (appartement)

Bouwjaar
1955
Geschatte waarde
€ 192.500
Oppervlakte
65 m2
Inhoud
220 m3
Aantal kamers
4 kamers
Slaapkamers
2
Badkamers
1 badkamer en 1 apart toilet
Soort bouw
Bestaande bouw
Eigendomssituatie
Volle eigendom
Ligging
Aan rustige weg, in bosrijke omgeving, in woonwijk, open ligging en vrij uitzicht

Voorzieningen in de buurt

Boodschappen0,4 km
Grote supermarkt0,8 km
Cafetaria0,4 km
Restaurant0,4 km
Huisarts0,3 km
Ziekenhuis4,0 km
Kinderdagverblijf0,3 km
BSO0,8 km
Alle voorzieningen in Bosweg

Binnenkijken bij Réaumurstraat 29 te Amersfoort

Meer meldingen in deze omgeving

Nieuw bedrijf
April 2026
Réaumurstraat 21C, 3817ZK Amersfoort

112 melding
Dinsdag 14-4-2026 om 05:03
Cartesiusstraat, 3817XP Amersfoort

112 melding
Dinsdag 14-4-2026 om 04:54
Cartesiusstraat, 3817XP Amersfoort

112 melding
Dinsdag 14-4-2026 om 04:03
Cartesiusstraat, 3817XP Amersfoort

Binnenkijken bij
Vrijdag 10-4-2026
Arnhemseweg-Zuid 133, 3817CD Amersfoort

Binnenkijken bij
Vrijdag 10-4-2026
Stephensonstraat 44, 3817JD Amersfoort

Binnenkijken bij
Vrijdag 3-4-2026
Zandbergenlaan 36, 3817GN Amersfoort

Faillissement
Donderdag 2-4-2026
Arnhemseweg 286B, 3817CR AMERSFOORT

Direct een e-mail ontvangen bij nieuwe meldingen in deze regio?

Meld je dan GRATIS aan voor de Oozo Alert service voor Bosweg

Instellen

Meer nieuws in Bosweg

Weten hoe eenvoudig het is om af te vallen? Zonder pillen en smeersels en zonder je in het zweet te werken!
Kijk op eenvoudig-afvallen.nl

© 2012 - 2026 OOZO.nl - info@oozo.nl - Gegevens verwijderen? | Disclaimer | Privacy statement