Woning Zandbergenlaan 45 Amersfoort

Zandbergenlaan 45, 3817GT Amersfoort

Ontvang updates voor Bosweg

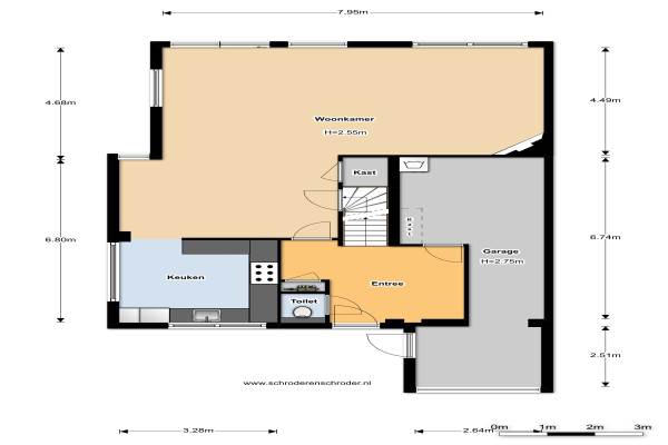
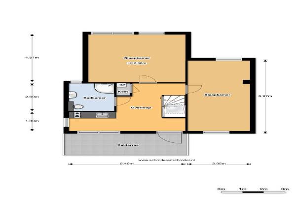
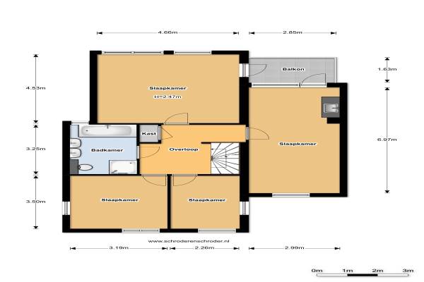
Het adres van deze woning uit 1990 is Zandbergenlaan 45 te Amersfoort. Het pand heeft een oppervlakte van 227m² en een perceeloppervlakte van 390m² en heeft 8 kamers kamers waarvan 6 slaapkamers. De geschatte waarde van deze woning is € 635.000.

Bekijk alle woningen in Bosweg

Gegevens van Eengezinswoning, hoekwoning

Bouwjaar
1990
Geschatte waarde
€ 635.000
Oppervlakte
227 m2
Inhoud
865 m3
Aantal kamers
8 kamers
Slaapkamers
6
Badkamers
1 badkamer en 1 apart toilet
Soort bouw
Bestaande bouw
Eigendomssituatie
Volle eigendom
Ligging
Aan bosrand, aan rustige weg en beschutte ligging
Tuin
Achtertuin, voortuin en zijtuin
Achtertuin
140 m² (14m diep en 10m breed)

Voorzieningen in de buurt

Boodschappen0,4 km
Grote supermarkt0,8 km
Cafetaria0,4 km
Restaurant0,4 km
Huisarts0,3 km
Ziekenhuis4,0 km
Kinderdagverblijf0,3 km
BSO0,8 km
Alle voorzieningen in Bosweg

Binnenkijken bij Zandbergenlaan 45 te Amersfoort

Meer meldingen in deze omgeving

Nieuw bedrijf
April 2026
Réaumurstraat 21C, 3817ZK Amersfoort

112 melding
Dinsdag 14-4-2026 om 05:03
Cartesiusstraat, 3817XP Amersfoort

112 melding
Dinsdag 14-4-2026 om 04:54
Cartesiusstraat, 3817XP Amersfoort

112 melding
Dinsdag 14-4-2026 om 04:03
Cartesiusstraat, 3817XP Amersfoort

Binnenkijken bij
Vrijdag 10-4-2026
Arnhemseweg-Zuid 133, 3817CD Amersfoort

Binnenkijken bij
Vrijdag 10-4-2026
Stephensonstraat 44, 3817JD Amersfoort

Binnenkijken bij
Vrijdag 3-4-2026
Zandbergenlaan 36, 3817GN Amersfoort

Faillissement
Donderdag 2-4-2026
Arnhemseweg 286B, 3817CR AMERSFOORT

Direct een e-mail ontvangen bij nieuwe meldingen in deze regio?

Meld je dan GRATIS aan voor de Oozo Alert service voor Bosweg

Instellen

Meer nieuws in Bosweg

Weten hoe eenvoudig het is om af te vallen? Zonder pillen en smeersels en zonder je in het zweet te werken!
Kijk op eenvoudig-afvallen.nl

© 2012 - 2026 OOZO.nl - info@oozo.nl - Gegevens verwijderen? | Disclaimer | Privacy statement