Woning Theo Uden Masmanstraat 23 Amersfoort

Theo Uden Masmanstraat 23, 3813ZE Amersfoort

Ontvang updates voor Het Gein

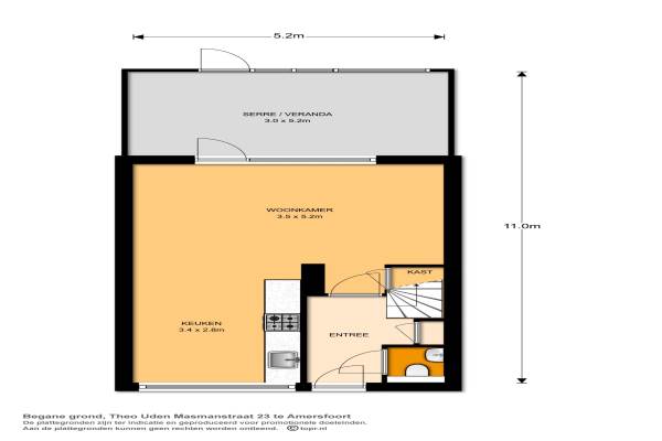
Het adres van deze woning uit 1989 is Theo Uden Masmanstraat 23 te Amersfoort. Het pand heeft een oppervlakte van 81m² en een perceeloppervlakte van 134m² en heeft 4 kamers kamers waarvan 3 slaapkamers. De geschatte waarde van deze woning is € 232.500.

Bekijk alle woningen in Het Gein

Gegevens van Eengezinswoning, tussenwoning

Bouwjaar
1989
Geschatte waarde
€ 232.500
Oppervlakte
81 m2
Inhoud
245 m3
Aantal kamers
4 kamers
Slaapkamers
3
Badkamers
1 badkamer en 1 apart toilet
Soort bouw
Bestaande bouw
Eigendomssituatie
Volle eigendom
Ligging
Aan rustige weg en in woonwijk
Tuin
Achtertuin en voortuin
Achtertuin
44 m² (8,2m diep en 5,36m breed)

Voorzieningen in de buurt

Boodschappen1,0 km
Grote supermarkt0,4 km
Cafetaria0,4 km
Restaurant0,4 km
Huisarts1,0 km
Ziekenhuis3,0 km
Kinderdagverblijf0,5 km
BSO0,5 km
Alle voorzieningen in Het Gein

Binnenkijken bij Theo Uden Masmanstraat 23 te Amersfoort

Meer meldingen in deze omgeving

Binnenkijken bij
Vrijdag 23-1-2026
Charlie Parkerstraat 27, 3813ZH Amersfoort

Binnenkijken bij
Zaterdag 17-1-2026
Theo Uden Masmanstraat 79, 3813ZE Amersfoort

112 melding
Vrijdag 16-1-2026 om 15:31
Zielhorsterweg, 3813ZX Amersfoort

112 melding
Vrijdag 16-1-2026 om 15:31
Zielhorsterweg, 3813ZX Amersfoort

Binnenkijken bij
Vrijdag 9-1-2026
Count Basiestraat 2, 3813ZP Amersfoort

Nieuw bedrijf
December 2025
Sara Burgerhartsingel 363, 3813NZ Amersfoort

Nieuw bedrijf
December 2025
Wessel Ilckenstraat 28, 3813ZB Amersfoort

Binnenkijken bij
Vrijdag 5-12-2025
Sara Burgerhartsingel 323, 3813NZ Amersfoort

Direct een e-mail ontvangen bij nieuwe meldingen in deze regio?

Meld je dan GRATIS aan voor de Oozo Alert service voor Het Gein

Instellen

Meer nieuws in Het Gein

Weten hoe eenvoudig het is om af te vallen? Zonder pillen en smeersels en zonder je in het zweet te werken!
Kijk op eenvoudig-afvallen.nl

© 2012 - 2026 OOZO.nl - info@oozo.nl - Gegevens verwijderen? | Disclaimer | Privacy statement