Woning Lancelotpad 42 Amersfoort

Lancelotpad 42, 3813EW Amersfoort

Ontvang updates voor De Plaatsen

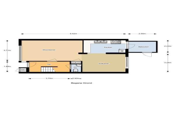
Het adres van deze woning uit 1974 is Lancelotpad 42 te Amersfoort. Het pand heeft een oppervlakte van 105m² en een perceeloppervlakte van 316m² en heeft 5 kamers kamers waarvan 3 slaapkamers. De geschatte waarde van deze woning is € 300.000.

Bekijk alle woningen in De Plaatsen

Gegevens van Eengezinswoning, hoekwoning

Bouwjaar
1974
Geschatte waarde
€ 300.000
Oppervlakte
105 m2
Inhoud
425 m3
Aantal kamers
5 kamers
Slaapkamers
3
Badkamers
1 badkamer en 1 apart toilet
Soort bouw
Bestaande bouw
Eigendomssituatie
Volle eigendom
Tuin
Achtertuin, voortuin en zijtuin
Achtertuin
72 m² (11m diep en 6,5m breed)

Voorzieningen in de buurt

Boodschappen0,6 km
Grote supermarkt0,6 km
Cafetaria0,6 km
Restaurant0,8 km
Huisarts0,7 km
Ziekenhuis1,9 km
Kinderdagverblijf0,4 km
BSO0,4 km
Alle voorzieningen in De Plaatsen

Binnenkijken bij Lancelotpad 42 te Amersfoort

Meer meldingen in deze omgeving

Binnenkijken bij
Zaterdag 6-12-2025
Turpijnplaats 8, 3813JH Amersfoort

112 melding
Maandag 24-11-2025 om 15:18
Ferguutplaats, Amersfoort

112 melding
Maandag 24-11-2025 om 15:18
Ferguutplaats, Amersfoort

112 melding
Maandag 24-11-2025 om 15:18
Merlijnstraat, 3813GE Amersfoort

112 melding
Maandag 24-11-2025 om 15:18
Merlijnstraat, 3813GE Amersfoort

Binnenkijken bij
Vrijdag 14-11-2025
Olivierplaats 42, 3813JD Amersfoort

Binnenkijken bij
Dinsdag 11-11-2025
Turpijnplaats 61, 3813JG Amersfoort

Binnenkijken bij
Vrijdag 17-10-2025
Paladijnenweg 71, 3813DC Amersfoort

Direct een e-mail ontvangen bij nieuwe meldingen in deze regio?

Meld je dan GRATIS aan voor de Oozo Alert service voor De Plaatsen

Instellen

Meer nieuws in De Plaatsen

Weten hoe eenvoudig het is om af te vallen? Zonder pillen en smeersels en zonder je in het zweet te werken!
Kijk op eenvoudig-afvallen.nl

© 2012 - 2025 OOZO.nl - info@oozo.nl - Gegevens verwijderen? | Disclaimer | Privacy statement