Woning Haarlerberg 4 Amersfoort

Haarlerberg 4, 3825CD Amersfoort

Ontvang updates voor Leersumseberg

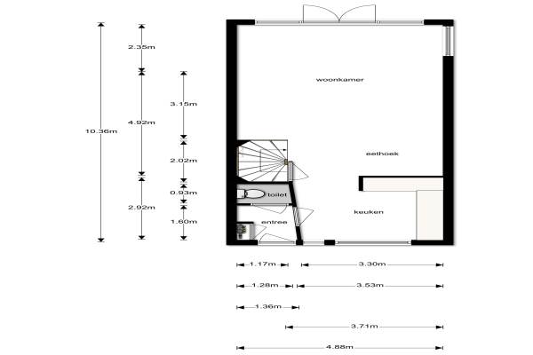
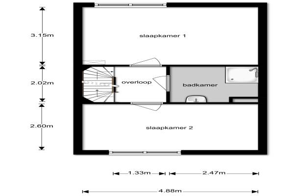
Het adres van deze woning uit 2002 is Haarlerberg 4 te Amersfoort. Het pand heeft een oppervlakte van 120m² en een perceeloppervlakte van 139m² en heeft 5 kamers kamers waarvan 4 slaapkamers. De geschatte waarde van deze woning is € 359.500.

Bekijk alle woningen in Leersumseberg

Gegevens van Eengezinswoning, hoekwoning

Bouwjaar
2002
Geschatte waarde
€ 359.500
Oppervlakte
120 m2
Inhoud
420 m3
Aantal kamers
5 kamers
Slaapkamers
4
Badkamers
1 badkamer en 1 apart toilet
Soort bouw
Bestaande bouw
Eigendomssituatie
Volle eigendom
Ligging
Aan park, aan rustige weg, in woonwijk en beschutte ligging
Tuin
Achtertuin en voortuin
Achtertuin
48 m² (8,1m diep en 5,9m breed)

Voorzieningen in de buurt

Boodschappen1,8 km
Grote supermarkt1,5 km
Cafetaria1,2 km
Restaurant0,7 km
Huisarts1,0 km
Ziekenhuis5,6 km
Kinderdagverblijf0,5 km
BSO0,5 km
Alle voorzieningen in Leersumseberg

Binnenkijken bij Haarlerberg 4 te Amersfoort

Meer meldingen in deze omgeving

112 melding
Vrijdag 13-3-2026 om 14:59
Hoenderberg, Amersfoort

Binnenkijken bij
Vrijdag 13-3-2026
Geulhemmerberg 31, 3825CA Amersfoort

Nieuw bedrijf
Maart 2026
Lemelerberg 29, 3825CH Amersfoort

Nieuw bedrijf
Maart 2026
Laakboulevard 64, 3825AE Amersfoort

Binnenkijken bij
Vrijdag 27-2-2026
Kamerdalseberg 50, 3825CN Amersfoort

Nieuw bedrijf
Februari 2026
Bergenboulevard 132, 3825AB Amersfoort

Nieuw bedrijf
Februari 2026
Bergenboulevard 132, 3825AB Amersfoort

Binnenkijken bij
Donderdag 12-2-2026
Kiekberg 11, 3825CG Amersfoort

Direct een e-mail ontvangen bij nieuwe meldingen in deze regio?

Meld je dan GRATIS aan voor de Oozo Alert service voor Leersumseberg

Instellen

Meer nieuws in Leersumseberg

Weten hoe eenvoudig het is om af te vallen? Zonder pillen en smeersels en zonder je in het zweet te werken!
Kijk op eenvoudig-afvallen.nl

© 2012 - 2026 OOZO.nl - info@oozo.nl - Gegevens verwijderen? | Disclaimer | Privacy statement