Woning Bisschopsweg 99 Amersfoort

Bisschopsweg 99, 3817BS Amersfoort

Ontvang updates voor Albert Cuypstraat

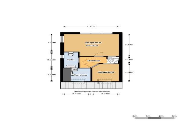
Het adres van deze woning uit 1899 is Bisschopsweg 99 te Amersfoort. Het pand heeft een oppervlakte van 131m² en een perceeloppervlakte van 236m² en heeft 6 kamers kamers waarvan 4 slaapkamers. De geschatte waarde van deze woning is € 775.000.

Bekijk alle woningen in Albert Cuypstraat

Gegevens van Eengezinswoning, tussenwoning

Bouwjaar
1899
Geschatte waarde
€ 775.000
Oppervlakte
131 m2
Inhoud
465 m3
Aantal kamers
6 kamers
Slaapkamers
4
Badkamers
1 badkamer
Soort bouw
Bestaande bouw
Eigendomssituatie
Volle eigendom
Ligging
Aan rustige weg, in centrum en in woonwijk
Tuin
Achtertuin
Achtertuin
161 m² (32,20 meter diep en 5,00 meter breed)

Voorzieningen in de buurt

Boodschappen0,3 km
Grote supermarkt0,5 km
Cafetaria0,3 km
Restaurant0,3 km
Huisarts0,4 km
Ziekenhuis3,4 km
Kinderdagverblijf0,3 km
BSO0,4 km
Alle voorzieningen in Albert Cuypstraat

Binnenkijken bij Bisschopsweg 99 te Amersfoort

Meer meldingen in deze omgeving

Binnenkijken bij
Woensdag 8-4-2026
Arnhemseweg 188, 3817CM Amersfoort

112 melding
Donderdag 2-4-2026 om 11:10
Paulus Potterstraat, Amersfoort

112 melding
Maandag 30-3-2026 om 09:40
Albert Cuijpstraat, Albert Cuypstraat

112 melding
Maandag 30-3-2026 om 09:19
Albert Cuijpstraat, Albert Cuypstraat

112 melding
Zaterdag 28-3-2026 om 07:26
Albert Cuijpstraat, Albert Cuypstraat

Faillissement
Donderdag 26-3-2026
Bisschopsweg 187, 3817BT Amersfoort

Binnenkijken bij
Dinsdag 24-3-2026
Leusderweg 24A, 3817KA Amersfoort

112 melding
Woensdag 18-3-2026 om 19:43
Albert Cuijpstraat, Albert Cuypstraat

Direct een e-mail ontvangen bij nieuwe meldingen in deze regio?

Meld je dan GRATIS aan voor de Oozo Alert service voor Albert Cuypstraat

Instellen

Meer nieuws in Albert Cuypstraat

Weten hoe eenvoudig het is om af te vallen? Zonder pillen en smeersels en zonder je in het zweet te werken!
Kijk op eenvoudig-afvallen.nl

© 2012 - 2026 OOZO.nl - info@oozo.nl - Gegevens verwijderen? | Disclaimer | Privacy statement