Woning Frederik van Blankenheymstraat 16 Amersfoort

Frederik van Blankenheymstraat 16, 3817AG Amersfoort

Ontvang updates voor Bekenstein en De Luiaard

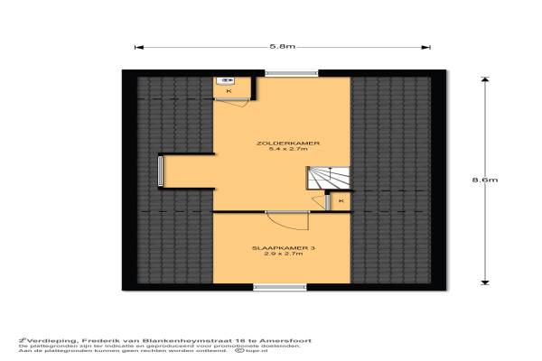
Het adres van deze woning is Frederik van Blankenheymstraat 16 te Amersfoort. Het pand heeft een oppervlakte van 133m² en een perceeloppervlakte van 307m² en heeft 6 kamers kamers waarvan 3 slaapkamers. De geschatte waarde van deze woning is € 569.000.

Bekijk alle woningen in Bekenstein en De Luiaard

Gegevens van Herenhuis, vrijstaande woning

Geschatte waarde
€ 569.000
Oppervlakte
133 m2
Inhoud
449 m3
Aantal kamers
6 kamers
Slaapkamers
3
Badkamers
1 apart toilet
Soort bouw
Bestaande bouw
Ligging
Aan rustige weg en in woonwijk
Tuin
Achtertuin, voortuin en zijtuin
Achtertuin
175 m² (33m diep en 5,3m breed)

Voorzieningen in de buurt

Boodschappen0,2 km
Grote supermarkt0,5 km
Cafetaria0,2 km
Restaurant0,4 km
Huisarts0,4 km
Ziekenhuis3,2 km
Kinderdagverblijf0,2 km
BSO0,3 km
Alle voorzieningen in Bekenstein en De Luiaard

Binnenkijken bij Frederik van Blankenheymstraat 16 te Amersfoort

Meer meldingen in deze omgeving

Binnenkijken bij
Zondag 16-11-2025
Bisschopsweg 52, 3817BW Amersfoort

Binnenkijken bij
Vrijdag 14-11-2025
Hendrik van Viandenstraat 35B, 3817AA Amersfoort

Binnenkijken bij
Vrijdag 14-11-2025
Bisschopsweg 64, 3817BW Amersfoort

Binnenkijken bij
Vrijdag 14-11-2025
Sint Ansfridusstraat 46A, 3817BJ Amersfoort

Nieuw bedrijf
November 2025
Sint Ansfridusstraat 32G, 3817BH Amersfoort

Nieuw bedrijf
November 2025
Arnhemseweg 2, 3817CH Amersfoort

Nieuw bedrijf
November 2025
Arnhemseweg 2, 3817CH Amersfoort

Nieuw bedrijf
November 2025
Stadsring 115, 3817AX Amersfoort

Direct een e-mail ontvangen bij nieuwe meldingen in deze regio?

Meld je dan GRATIS aan voor de Oozo Alert service voor Bekenstein en De Luiaard

Instellen

Meer nieuws in Bekenstein en De Luiaard

Weten hoe eenvoudig het is om af te vallen? Zonder pillen en smeersels en zonder je in het zweet te werken!
Kijk op eenvoudig-afvallen.nl

© 2012 - 2025 OOZO.nl - info@oozo.nl - Gegevens verwijderen? | Disclaimer | Privacy statement