Woning Diamantweg 91 Amersfoort

Diamantweg 91, 3817GJ Amersfoort

Ontvang updates voor Dorrestein

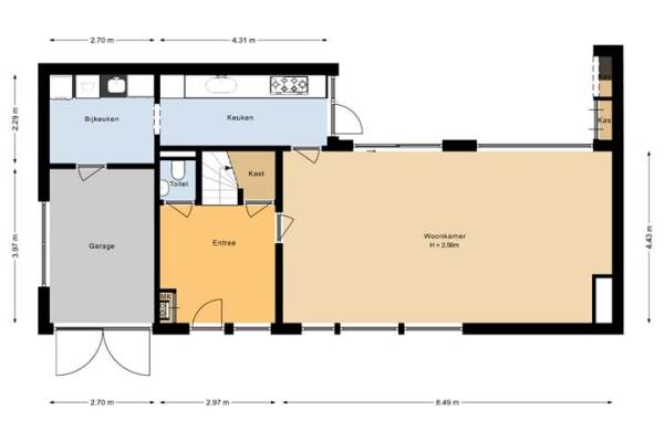
Het adres van deze woning uit 1977 is Diamantweg 91 te Amersfoort. Het pand heeft een oppervlakte van 120m² en een perceeloppervlakte van 396m² en heeft 4 kamers kamers waarvan 3 slaapkamers. De geschatte waarde van deze woning is € 740.000.

Bekijk alle woningen in Dorrestein

Gegevens van Eengezinswoning, geschakelde woning

Bouwjaar
1977
Geschatte waarde
€ 740.000
Oppervlakte
120 m2
Inhoud
500 m3
Aantal kamers
4 kamers
Slaapkamers
3
Badkamers
1 badkamer en 2 aparte toiletten
Soort bouw
Bestaande bouw
Eigendomssituatie
Volle eigendom
Ligging
Aan rustige weg, in bosrijke omgeving en in woonwijk
Tuin
Achtertuin en voortuin
Achtertuin
210 m² (28,00 meter diep en 7,50 meter breed)

Voorzieningen in de buurt

Boodschappen0,9 km
Grote supermarkt1,6 km
Cafetaria0,9 km
Restaurant1,1 km
Huisarts0,9 km
Ziekenhuis3,6 km
Kinderdagverblijf0,9 km
BSO0,3 km
Alle voorzieningen in Dorrestein

Binnenkijken bij Diamantweg 91 te Amersfoort

Meer meldingen in deze omgeving

112 melding
Maandag 29-12-2025 om 23:25
Diamantweg, Amersfoort

112 melding
Dinsdag 25-11-2025 om 02:40
Dorresteinseweg, Amersfoort

Nieuw bedrijf
Oktober 2025
Diamantweg 24G, 3817GK Amersfoort

112 melding
Donderdag 23-10-2025 om 13:23
Diamantweg, Amersfoort

Binnenkijken bij
Donderdag 9-10-2025
Dorresteinseweg 90, 3817GD Amersfoort

Nieuw bedrijf
Oktober 2025
Dorresteinseweg 29, 3817GA Amersfoort

Nieuw bedrijf
September 2025
Diamantweg 47, 3817GH Amersfoort

Nieuw bedrijf
September 2025
Dorresteinseweg 116, 3817GD Amersfoort

Direct een e-mail ontvangen bij nieuwe meldingen in deze regio?

Meld je dan GRATIS aan voor de Oozo Alert service voor Dorrestein

Instellen

Meer nieuws in Dorrestein

Weten hoe eenvoudig het is om af te vallen? Zonder pillen en smeersels en zonder je in het zweet te werken!
Kijk op eenvoudig-afvallen.nl

© 2012 - 2025 OOZO.nl - info@oozo.nl - Gegevens verwijderen? | Disclaimer | Privacy statement