Woning Citerpad 3 Amersfoort

Citerpad 3, 3822CE Amersfoort

Ontvang updates voor Muziekbuurt-Zuid

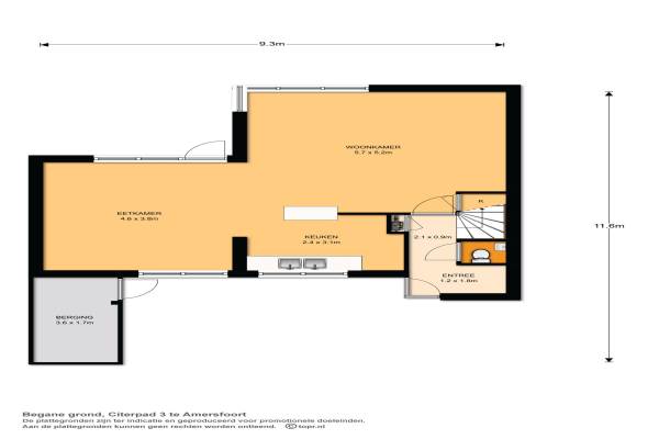
Het adres van deze woning uit 1989 is Citerpad 3 te Amersfoort. Het pand heeft een oppervlakte van 109m² en een perceeloppervlakte van 173m² en heeft 5 kamers kamers waarvan 3 slaapkamers. De geschatte waarde van deze woning is € 235.000.

Bekijk alle woningen in Muziekbuurt-Zuid

Gegevens van Eengezinswoning, tussenwoning

Bouwjaar
1989
Geschatte waarde
€ 235.000
Oppervlakte
109 m2
Inhoud
310 m3
Aantal kamers
5 kamers
Slaapkamers
3
Badkamers
1 badkamer en 1 apart toilet
Soort bouw
Bestaande bouw
Eigendomssituatie
Volle eigendom
Ligging
Aan rustige weg, in woonwijk en vrij uitzicht
Tuin
Achtertuin en voortuin
Achtertuin
69 m² (9,1m diep en 9,6m breed)

Voorzieningen in de buurt

Boodschappen1,0 km
Grote supermarkt0,5 km
Cafetaria0,5 km
Restaurant0,5 km
Huisarts0,4 km
Ziekenhuis3,6 km
Kinderdagverblijf0,3 km
BSO0,3 km
Alle voorzieningen in Muziekbuurt-Zuid

Binnenkijken bij Citerpad 3 te Amersfoort

Meer meldingen in deze omgeving

Binnenkijken bij
Dinsdag 25-11-2025
Banjostraat 1, 3822DV Amersfoort

Nieuw bedrijf
November 2025
Klarinetpad 1, 3822CS Amersfoort

Nieuw bedrijf
Oktober 2025
Trompetstraat 22, 3822CK Amersfoort

Nieuw bedrijf
Oktober 2025
Trompetstraat 22, 3822CK Amersfoort

Nieuw bedrijf
September 2025
Piccolopad 17, 3822CP Amersfoort

Binnenkijken bij
Vrijdag 27-6-2025
Trompetstraat 26, 3822CK Amersfoort

Binnenkijken bij
Zondag 15-6-2025
Piccolopad 2, 3822CR Amersfoort

Binnenkijken bij
Vrijdag 6-6-2025
Trombonestraat 12, 3822CH Amersfoort

Direct een e-mail ontvangen bij nieuwe meldingen in deze regio?

Meld je dan GRATIS aan voor de Oozo Alert service voor Muziekbuurt-Zuid

Instellen

Meer nieuws in Muziekbuurt-Zuid

Weten hoe eenvoudig het is om af te vallen? Zonder pillen en smeersels en zonder je in het zweet te werken!
Kijk op eenvoudig-afvallen.nl

© 2012 - 2025 OOZO.nl - info@oozo.nl - Gegevens verwijderen? | Disclaimer | Privacy statement