Woning Olympiaplein 33 Amsterdam

Olympiaplein 33, 1077CL Amsterdam

Ontvang updates voor Minervabuurt Midden

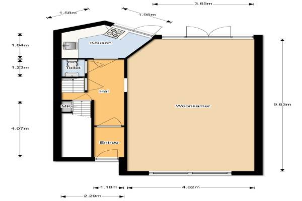
Het adres van deze woning uit 1927 is Olympiaplein 33 te Amsterdam. Het pand heeft een oppervlakte van 127m² en heeft 4 kamers kamers waarvan 3 slaapkamers. De geschatte waarde van deze woning is € 925.000.

Bekijk alle woningen in Minervabuurt Midden

Gegevens van Benedenwoning (appartement)

Bouwjaar
1927
Geschatte waarde
€ 925.000
Oppervlakte
127 m2
Inhoud
592 m3
Aantal kamers
4 kamers
Slaapkamers
3
Badkamers
1 badkamer en 1 apart toilet
Soort bouw
Bestaande bouw
Ligging
Aan rustige weg, in woonwijk en vrij uitzicht
Tuin
Achtertuin

Voorzieningen in de buurt

Boodschappen0,3 km
Grote supermarkt0,3 km
Cafetaria0,3 km
Restaurant0,3 km
Huisarts0,3 km
Ziekenhuis2,3 km
Kinderdagverblijf0,3 km
BSO0,4 km
Alle voorzieningen in Minervabuurt Midden

Binnenkijken bij Olympiaplein 33 te Amsterdam

Meer meldingen in deze omgeving

Binnenkijken bij
Woensdag 11-2-2026
Quinten Massijsstraat 24, 1077MC Amsterdam

112 melding
Maandag 9-2-2026 om 21:28
Quinten Massijsstraat, Amsterdam

Binnenkijken bij
Maandag 9-2-2026
Olympiaplein 53H, 1077CN Amsterdam

Binnenkijken bij
Donderdag 5-2-2026
Cliostraat 613V, 1077KE Amsterdam

Nieuw bedrijf
Februari 2026
Michelangelostraat 492, 1077BS Amsterdam

112 melding
Vrijdag 30-1-2026 om 19:31
Anthonie van Dijckstraat, Amsterdam

Binnenkijken bij
Vrijdag 30-1-2026
Cliostraat 121, 1077KG Amsterdam

Binnenkijken bij
Zondag 25-1-2026
Stadionweg 158, 1077TA Amsterdam

Direct een e-mail ontvangen bij nieuwe meldingen in deze regio?

Meld je dan GRATIS aan voor de Oozo Alert service voor Minervabuurt Midden

Instellen

Meer nieuws in Minervabuurt Midden

Weten hoe eenvoudig het is om af te vallen? Zonder pillen en smeersels en zonder je in het zweet te werken!
Kijk op eenvoudig-afvallen.nl

© 2012 - 2026 OOZO.nl - info@oozo.nl - Gegevens verwijderen? | Disclaimer | Privacy statement