Woning Rubensstraat 14 Amsterdam

Rubensstraat 14, 1077MP Amsterdam

Ontvang updates voor Minervabuurt Noord

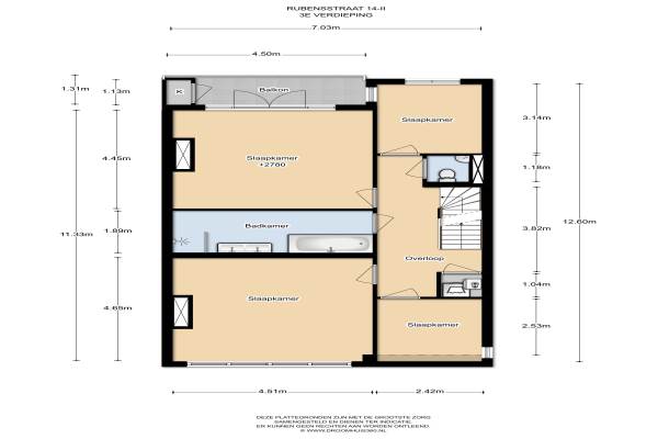
Het adres van deze woning is Rubensstraat 14 te Amsterdam. Het pand heeft een oppervlakte van 163m² en heeft 6 kamers kamers waarvan 5 slaapkamers. De geschatte waarde van deze woning is € 1.250.000.

Bekijk alle woningen in Minervabuurt Noord

Gegevens van Bovenwoning (dubbel bovenhuis)

Geschatte waarde
€ 1.250.000
Oppervlakte
163 m2
Inhoud
523 m3
Aantal kamers
6 kamers
Slaapkamers
5
Badkamers
1 badkamer en 1 apart toilet
Soort bouw
Bestaande bouw
Ligging
Aan rustige weg
Tuin
Zonneterras

Voorzieningen in de buurt

Boodschappen0,2 km
Grote supermarkt0,5 km
Cafetaria0,3 km
Restaurant0,3 km
Huisarts0,5 km
Ziekenhuis2,6 km
Kinderdagverblijf0,2 km
BSO0,2 km
Alle voorzieningen in Minervabuurt Noord

Binnenkijken bij Rubensstraat 14 te Amsterdam

Meer meldingen in deze omgeving

Binnenkijken bij
Donderdag 19-3-2026
Jan van Eijckstraat 292, 1077LG Amsterdam

Nieuw bedrijf
Maart 2026
Apollolaan 171C, 1077AS Amsterdam

Nieuw bedrijf
Maart 2026
Minervalaan 11H, 1077NJ Amsterdam

Binnenkijken bij
Woensdag 18-3-2026
Jan van Eijckstraat 262, 1077LM Amsterdam

112 melding
Zaterdag 14-3-2026 om 11:46
Breughelstraat, Amsterdam

Nieuw bedrijf
Maart 2026
Minervalaan 162, 1077NX Amsterdam

Nieuw bedrijf
Maart 2026
Apollolaan 153, 1077AS Amsterdam

Nieuw bedrijf
Maart 2026
Apollolaan 151, 1077AR Amsterdam

Direct een e-mail ontvangen bij nieuwe meldingen in deze regio?

Meld je dan GRATIS aan voor de Oozo Alert service voor Minervabuurt Noord

Instellen

Meer nieuws in Minervabuurt Noord

Weten hoe eenvoudig het is om af te vallen? Zonder pillen en smeersels en zonder je in het zweet te werken!
Kijk op eenvoudig-afvallen.nl

© 2012 - 2026 OOZO.nl - info@oozo.nl - Gegevens verwijderen? | Disclaimer | Privacy statement