Woning Huntum 23 Amsterdam

Huntum 23, 1102JB Amsterdam

Ontvang updates voor Huntum

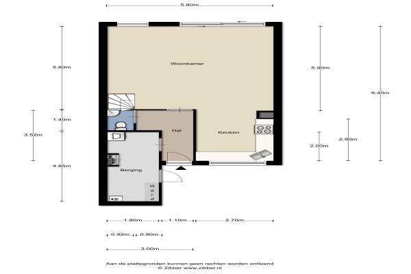
Het adres van deze woning uit 1988 is Huntum 23 te Amsterdam. Het pand heeft een oppervlakte van 114m² en een perceeloppervlakte van 193m² en heeft 4 kamers kamers waarvan 3 slaapkamers. De geschatte waarde van deze woning is € 320.000.

Bekijk alle woningen in Huntum

Gegevens van Eengezinswoning, hoekwoning

Bouwjaar
1988
Geschatte waarde
€ 320.000
Oppervlakte
114 m2
Inhoud
400 m3
Aantal kamers
4 kamers
Slaapkamers
3
Soort bouw
Bestaande bouw
Ligging
Aan park en in woonwijk

Voorzieningen in de buurt

Boodschappen1,2 km
Grote supermarkt1,3 km
Cafetaria1,2 km
Restaurant0,7 km
Huisarts0,4 km
Ziekenhuis2,2 km
Kinderdagverblijf0,6 km
BSO0,6 km
Alle voorzieningen in Huntum

Binnenkijken bij Huntum 23 te Amsterdam

Meer meldingen in deze omgeving

Nieuw bedrijf
Oktober 2025
Huntum 56B, 1102JD Amsterdam

112 melding
Maandag 29-9-2025 om 10:38
Huntum, Amsterdam

112 melding
Dinsdag 23-9-2025 om 12:28
Huntum, Amsterdam

112 melding
Dinsdag 16-9-2025 om 14:35
Huntum, Amsterdam

112 melding
Zaterdag 6-9-2025 om 12:57
Huntum, Amsterdam

112 melding
Woensdag 27-8-2025 om 07:46
Huntum, Amsterdam

Binnenkijken bij
Zaterdag 28-6-2025
Huntum 22A, 1102JB Amsterdam

Nieuw bedrijf
Juni 2025
Huntum 51B, 1102JD Amsterdam

Direct een e-mail ontvangen bij nieuwe meldingen in deze regio?

Meld je dan GRATIS aan voor de Oozo Alert service voor Huntum

Instellen

Meer nieuws in Huntum

Weten hoe eenvoudig het is om af te vallen? Zonder pillen en smeersels en zonder je in het zweet te werken!
Kijk op eenvoudig-afvallen.nl

© 2012 - 2025 OOZO.nl - info@oozo.nl - Gegevens verwijderen? | Disclaimer | Privacy statement