Woning Hofgeest 98 Amsterdam

Hofgeest 98, 1102EE Amsterdam

Ontvang updates voor Rechte H-buurt

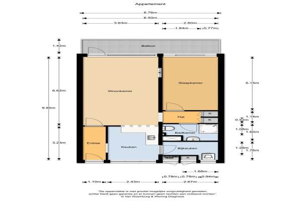
Het adres van deze woning uit 1969 is Hofgeest 98 te Amsterdam. Het pand heeft een oppervlakte van 65m² en heeft 2 kamers kamers waarvan 1 slaapkamers. De geschatte waarde van deze woning is € 140.000.

Bekijk alle woningen in Rechte H-buurt

Gegevens van Galerijflat (appartement)

Bouwjaar
1969
Geschatte waarde
€ 140.000
Oppervlakte
65 m2
Inhoud
211 m3
Aantal kamers
2 kamers
Slaapkamers
1
Badkamers
1 badkamer
Soort bouw
Bestaande bouw
Eigendomssituatie
Erfpacht (einddatum erfpacht: 31-03-2049)
Ligging
Aan rustige weg, in woonwijk en vrij uitzicht

Voorzieningen in de buurt

Boodschappen0,6 km
Grote supermarkt0,7 km
Cafetaria0,8 km
Restaurant0,5 km
Huisarts0,7 km
Ziekenhuis2,9 km
Kinderdagverblijf0,7 km
BSO0,9 km
Alle voorzieningen in Rechte H-buurt

Binnenkijken bij Hofgeest 98 te Amsterdam

Meer meldingen in deze omgeving

112 melding
Zondag 28-12-2025 om 11:28
Hoogoord, Amsterdam

112 melding
Zaterdag 27-12-2025 om 20:04
Hoogoord, Amsterdam

112 melding
Zaterdag 27-12-2025 om 11:29
Hoogoord, Amsterdam

Nieuw bedrijf
December 2025
Hogevecht 264, 1102HN Amsterdam

Nieuw bedrijf
December 2025
Hofgeest 90D, 1102EE Amsterdam

112 melding
Maandag 22-12-2025 om 17:30
Haag en Veld, Amsterdam

112 melding
Maandag 22-12-2025 om 12:13
Hoogoord, Amsterdam

112 melding
Zondag 21-12-2025 om 21:47
Haag en Veld, Amsterdam

Direct een e-mail ontvangen bij nieuwe meldingen in deze regio?

Meld je dan GRATIS aan voor de Oozo Alert service voor Rechte H-buurt

Instellen

Meer nieuws in Rechte H-buurt

Weten hoe eenvoudig het is om af te vallen? Zonder pillen en smeersels en zonder je in het zweet te werken!
Kijk op eenvoudig-afvallen.nl

© 2012 - 2025 OOZO.nl - info@oozo.nl - Gegevens verwijderen? | Disclaimer | Privacy statement