Woning Dolingadreef 165 Amsterdam

Dolingadreef 165, 1102WS Amsterdam

Ontvang updates voor Venserpolder Oost

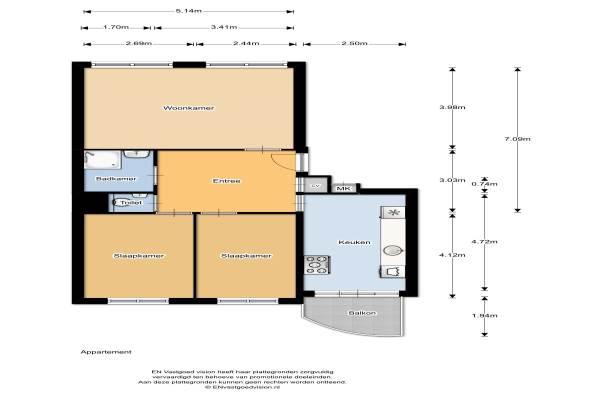
Het adres van deze woning uit 1984 is Dolingadreef 165 te Amsterdam. Het pand heeft een oppervlakte van 71m² en heeft 3 kamers kamers waarvan 2 slaapkamers. De geschatte waarde van deze woning is € 185.000.

Bekijk alle woningen in Venserpolder Oost

Gegevens van Portiekflat (appartement)

Bouwjaar
1984
Geschatte waarde
€ 185.000
Oppervlakte
71 m2
Inhoud
221 m3
Aantal kamers
3 kamers
Slaapkamers
2
Badkamers
1 badkamer en 1 apart toilet
Soort bouw
Bestaande bouw
Eigendomssituatie
Gemeentelijk eigendom belast met erfpacht
Ligging
Aan water, aan drukke weg, in woonwijk en vrij uitzicht

Voorzieningen in de buurt

Boodschappen0,5 km
Grote supermarkt0,5 km
Cafetaria0,3 km
Restaurant0,5 km
Huisarts0,5 km
Ziekenhuis4,7 km
Kinderdagverblijf0,3 km
BSO1,1 km
Alle voorzieningen in Venserpolder Oost

Binnenkijken bij Dolingadreef 165 te Amsterdam

Meer meldingen in deze omgeving

Nieuw bedrijf
November 2025
Dolingadreef 43, 1102WP Amsterdam

Nieuw bedrijf
November 2025
Dalsteindreef 260, 1102WZ Amsterdam

Nieuw bedrijf
November 2025
Dalsteindreef 376, 1102XA Amsterdam

Nieuw bedrijf
November 2025
Dickenslaan 238, 1102ZX Amsterdam

Nieuw bedrijf
November 2025
Daniël Defoelaan 156, 1102ZL Amsterdam

Nieuw bedrijf
November 2025
Simone de Beauvoirstraat 46, 1102AS Amsterdam

Nieuw bedrijf
November 2025
Dickenslaan 192, 1102ZX Amsterdam

Nieuw bedrijf
November 2025
Dantestraat 126, 1102ZP Amsterdam

Direct een e-mail ontvangen bij nieuwe meldingen in deze regio?

Meld je dan GRATIS aan voor de Oozo Alert service voor Venserpolder Oost

Instellen

Meer nieuws in Venserpolder Oost

Weten hoe eenvoudig het is om af te vallen? Zonder pillen en smeersels en zonder je in het zweet te werken!
Kijk op eenvoudig-afvallen.nl

© 2012 - 2025 OOZO.nl - info@oozo.nl - Gegevens verwijderen? | Disclaimer | Privacy statement