Woning Dostojevskisingel 309 Amsterdam

Dostojevskisingel 309, 1102XM Amsterdam

Ontvang updates voor Venserpolder Oost

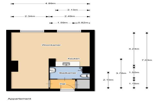
Het adres van deze woning uit 1983 is Dostojevskisingel 309 te Amsterdam. Het pand heeft een oppervlakte van 34m² en heeft 1 kamers kamers. De geschatte waarde van deze woning is € 140.000.

Bekijk alle woningen in Venserpolder Oost

Gegevens van Bovenwoning (appartement)

Bouwjaar
1983
Geschatte waarde
€ 140.000
Oppervlakte
34 m2
Inhoud
111 m3
Aantal kamers
1 kamers
Badkamers
1 badkamer
Soort bouw
Bestaande bouw
Eigendomssituatie
Gemeentelijk eigendom belast met erfpacht
Ligging
Aan rustige weg en in woonwijk

Voorzieningen in de buurt

Boodschappen0,5 km
Grote supermarkt0,5 km
Cafetaria0,3 km
Restaurant0,5 km
Huisarts0,5 km
Ziekenhuis4,7 km
Kinderdagverblijf0,3 km
BSO1,1 km
Alle voorzieningen in Venserpolder Oost

Binnenkijken bij Dostojevskisingel 309 te Amsterdam

Meer meldingen in deze omgeving

Nieuw bedrijf
November 2025
Charlotte Brontéstraat 119, 1102XC Amsterdam

Nieuw bedrijf
November 2025
Dickenslaan 155, 1102XR Amsterdam

Nieuw bedrijf
November 2025
Chestertonlaan 186, 1102ZC Amsterdam

Nieuw bedrijf
November 2025
Charlotte Brontéstraat 257, 1102XD Amsterdam

Binnenkijken bij
Zondag 16-11-2025
Charlotte Brontéstraat 128, 1102XH Amsterdam

Binnenkijken bij
Zondag 16-11-2025
Chestertonlaan 32, 1102XZ Amsterdam

Binnenkijken bij
Zaterdag 15-11-2025
Charlotte Brontéstraat 194, 1102XH Amsterdam

Binnenkijken bij
Zaterdag 15-11-2025
Dantestraat 8, 1102ZN Amsterdam

Direct een e-mail ontvangen bij nieuwe meldingen in deze regio?

Meld je dan GRATIS aan voor de Oozo Alert service voor Venserpolder Oost

Instellen

Meer nieuws in Venserpolder Oost

Weten hoe eenvoudig het is om af te vallen? Zonder pillen en smeersels en zonder je in het zweet te werken!
Kijk op eenvoudig-afvallen.nl

© 2012 - 2025 OOZO.nl - info@oozo.nl - Gegevens verwijderen? | Disclaimer | Privacy statement