Woning Emanzana 3 Amsterdam

Emanzana 3, 1103AV Amsterdam

Ontvang updates voor E-buurt

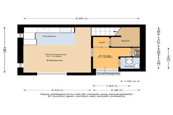
Het adres van deze woning uit 2008 is Emanzana 3 te Amsterdam. Het pand heeft een oppervlakte van 90m² en een perceeloppervlakte van 35m² en heeft 3 kamers kamers waarvan 2 slaapkamers. De geschatte waarde van deze woning is € 475.000.

Bekijk alle woningen in E-buurt

Gegevens van Eengezinswoning, hoekwoning

Bouwjaar
2008
Geschatte waarde
€ 475.000
Oppervlakte
90 m2
Inhoud
331 m3
Aantal kamers
3 kamers
Slaapkamers
2
Badkamers
1 badkamer en 1 apart toilet
Soort bouw
Bestaande bouw
Eigendomssituatie
Gemeentelijk eigendom belast met erfpacht
Ligging
Aan rustige weg, in woonwijk, open ligging en vrij uitzicht
Tuin
Zonneterras

Voorzieningen in de buurt

Boodschappen0,9 km
Grote supermarkt1,2 km
Cafetaria0,9 km
Restaurant0,6 km
Huisarts1,2 km
Ziekenhuis5,1 km
Kinderdagverblijf0,4 km
BSO0,4 km
Alle voorzieningen in E-buurt

Binnenkijken bij Emanzana 3 te Amsterdam

Meer meldingen in deze omgeving

112 melding
Donderdag 5-2-2026 om 09:11
Eensgevonden, 1103BA Amsterdam

112 melding
Donderdag 5-2-2026 om 09:08
Eensgevonden, 1103BA Amsterdam

112 melding
Woensdag 4-2-2026 om 09:04
EGoli, 1103AC Amsterdam

112 melding
Woensdag 4-2-2026 om 08:59
EGoli, 1103AC Amsterdam

Faillissement
Woensdag 28-1-2026
Empangeni 8, 1103AS Amsterdam

Nieuw bedrijf
Januari 2026
Daalwijkdreef 47, 1103AD Amsterdam

Nieuw bedrijf
Januari 2026
Daalwijkdreef 47, 1103AD Amsterdam

112 melding
Dinsdag 20-1-2026 om 03:21
Ethekwini, 1103AW Amsterdam

Direct een e-mail ontvangen bij nieuwe meldingen in deze regio?

Meld je dan GRATIS aan voor de Oozo Alert service voor E-buurt

Instellen

Meer nieuws in E-buurt

Weten hoe eenvoudig het is om af te vallen? Zonder pillen en smeersels en zonder je in het zweet te werken!
Kijk op eenvoudig-afvallen.nl

© 2012 - 2026 OOZO.nl - info@oozo.nl - Gegevens verwijderen? | Disclaimer | Privacy statement