Woning Bijlmerdreef 1287 Amsterdam

Bijlmerdreef 1287, 1103TV Amsterdam

Ontvang updates voor G-buurt West

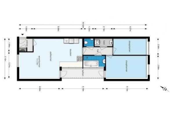
Het adres van deze woning uit 2003 is Bijlmerdreef 1287 te Amsterdam. Het pand heeft een oppervlakte van 73m² en heeft 3 kamers kamers waarvan 2 slaapkamers. De geschatte waarde van deze woning is € 310.000.

Bekijk alle woningen in G-buurt West

Gegevens van Bovenwoning

Bouwjaar
2003
Geschatte waarde
€ 310.000
Oppervlakte
73 m2
Inhoud
217 m3
Aantal kamers
3 kamers
Slaapkamers
2
Badkamers
1 apart toilet
Soort bouw
Bestaande bouw
Eigendomssituatie
Gemeentelijke erfpacht (einddatum erfpacht: 31-10-2051)
Ligging
Beschutte ligging, in woonwijk en vrij uitzicht

Voorzieningen in de buurt

Boodschappen0,5 km
Grote supermarkt0,6 km
Cafetaria0,5 km
Restaurant0,4 km
Huisarts0,3 km
Ziekenhuis4,3 km
Kinderdagverblijf0,4 km
BSO0,6 km
Alle voorzieningen in G-buurt West

Binnenkijken bij Bijlmerdreef 1287 te Amsterdam

Meer meldingen in deze omgeving

112 melding
Woensdag 21-1-2026 om 05:38
Bijlmerdreef, 1103JT Amsterdam

Binnenkijken bij
Woensdag 21-1-2026
Elisabeth Samsonstraat 9, 1103MR Amsterdam

Binnenkijken bij
Woensdag 21-1-2026
Elisabeth Samsonstraat 25, 1103MR Amsterdam

Binnenkijken bij
Woensdag 21-1-2026
Efua Sutherlandstraat 51, 1103MX Amsterdam

Binnenkijken bij
Woensdag 21-1-2026
Isabella Richaardsstraat 8, 1103MA Amsterdam

Binnenkijken bij
Woensdag 21-1-2026
Raden Adjeng Kartinistraat 5, 1103MG Amsterdam

112 melding
Dinsdag 20-1-2026 om 12:09
Bijlmerdreef, 1103JT Amsterdam

112 melding
Dinsdag 20-1-2026 om 10:02
Bijlmerdreef, 1103JT Amsterdam

Direct een e-mail ontvangen bij nieuwe meldingen in deze regio?

Meld je dan GRATIS aan voor de Oozo Alert service voor G-buurt West

Instellen

Meer nieuws in G-buurt West

Weten hoe eenvoudig het is om af te vallen? Zonder pillen en smeersels en zonder je in het zweet te werken!
Kijk op eenvoudig-afvallen.nl

© 2012 - 2026 OOZO.nl - info@oozo.nl - Gegevens verwijderen? | Disclaimer | Privacy statement