Woning Glitterstraat 172 Amsterdam

Glitterstraat 172, 1103SK Amsterdam

Ontvang updates voor Grunder/Koningshoef

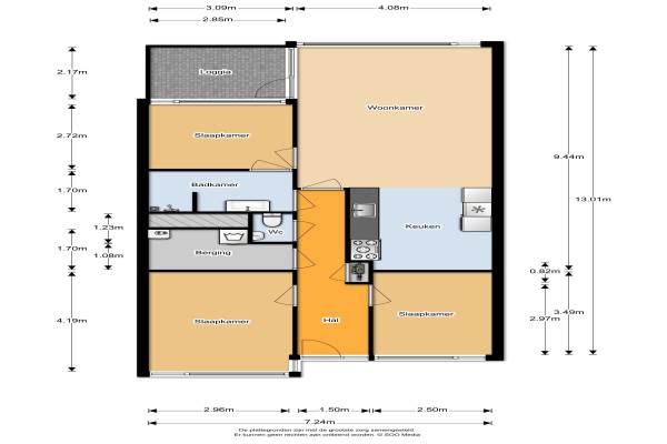
Het adres van deze woning uit 2007 is Glitterstraat 172 te Amsterdam. Het pand heeft een oppervlakte van 84m² en heeft 4 kamers kamers waarvan 3 slaapkamers. De geschatte waarde van deze woning is € 239.000.

Bekijk alle woningen in Grunder/Koningshoef

Gegevens van Bovenwoning (appartement)

Bouwjaar
2007
Geschatte waarde
€ 239.000
Oppervlakte
84 m2
Inhoud
285 m3
Aantal kamers
4 kamers
Slaapkamers
3
Badkamers
1 badkamer en 1 apart toilet
Soort bouw
Bestaande bouw
Eigendomssituatie
Gemeentelijk eigendom belast met erfpacht
Ligging
Aan rustige weg en in woonwijk

Voorzieningen in de buurt

Boodschappen0,7 km
Grote supermarkt0,9 km
Cafetaria0,7 km
Restaurant0,6 km
Huisarts0,4 km
Ziekenhuis4,7 km
Kinderdagverblijf0,3 km
BSO0,3 km
Alle voorzieningen in Grunder/Koningshoef

Binnenkijken bij Glitterstraat 172 te Amsterdam

Meer meldingen in deze omgeving

Nieuw bedrijf
December 2025
Bijlmerdreef 1455, 1103SC Amsterdam

Binnenkijken bij
Zaterdag 6-12-2025
Arènpalmstraat 16, 1104DB Amsterdam

Binnenkijken bij
Dinsdag 2-12-2025
Dadelpalmstraat 9B, 1104DD Amsterdam

Nieuw bedrijf
November 2025
Glitterstraat 5, 1103SK Amsterdam

Nieuw bedrijf
November 2025
Glitterstraat 122, 1103SK Amsterdam

Nieuw bedrijf
November 2025
Koolpalmhof 18, 1104DH Amsterdam

112 melding
Dinsdag 25-11-2025 om 18:44
Koolpalmhof, 1104DH Amsterdam

112 melding
Dinsdag 25-11-2025 om 14:38
Koolpalmhof, 1104DH Amsterdam

Direct een e-mail ontvangen bij nieuwe meldingen in deze regio?

Meld je dan GRATIS aan voor de Oozo Alert service voor Grunder/Koningshoef

Instellen

Meer nieuws in Grunder/Koningshoef

Weten hoe eenvoudig het is om af te vallen? Zonder pillen en smeersels en zonder je in het zweet te werken!
Kijk op eenvoudig-afvallen.nl

© 2012 - 2025 OOZO.nl - info@oozo.nl - Gegevens verwijderen? | Disclaimer | Privacy statement