Woning Koolpalmhof 14 Amsterdam

Koolpalmhof 14, 1104DH Amsterdam

Ontvang updates voor Grunder/Koningshoef

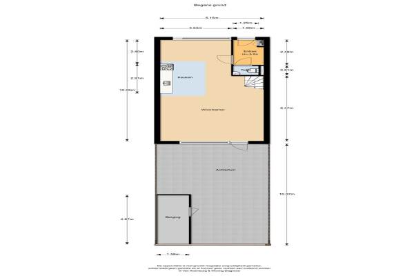
Het adres van deze woning uit 2003 is Koolpalmhof 14 te Amsterdam. Het pand heeft een oppervlakte van 103m² en een perceeloppervlakte van 114m² en heeft 3 kamers kamers waarvan 2 slaapkamers. De geschatte waarde van deze woning is € 235.000.

Bekijk alle woningen in Grunder/Koningshoef

Gegevens van Eengezinswoning, tussenwoning (hofjeswoning)

Bouwjaar
2003
Geschatte waarde
€ 235.000
Oppervlakte
103 m2
Inhoud
256 m3
Aantal kamers
3 kamers
Slaapkamers
2
Badkamers
1 badkamer en 1 apart toilet
Soort bouw
Bestaande bouw
Eigendomssituatie
Gemeentelijke erfpacht (einddatum erfpacht: 15-08-2052)
Ligging
Beschutte ligging en in woonwijk
Tuin
Achtertuin
Achtertuin
52 m² (10m diep en 5,15m breed)

Voorzieningen in de buurt

Boodschappen0,7 km
Grote supermarkt0,9 km
Cafetaria0,7 km
Restaurant0,6 km
Huisarts0,4 km
Ziekenhuis4,7 km
Kinderdagverblijf0,3 km
BSO0,3 km
Alle voorzieningen in Grunder/Koningshoef

Binnenkijken bij Koolpalmhof 14 te Amsterdam

Meer meldingen in deze omgeving

112 melding
Vrijdag 23-1-2026 om 10:36
Arènpalmstraat, 1104DB Amsterdam

Nieuw bedrijf
Januari 2026
Koolpalmhof 16, 1104DH Amsterdam

112 melding
Vrijdag 16-1-2026 om 20:49
Arènpalmstraat, 1104DB Amsterdam

112 melding
Maandag 12-1-2026 om 12:37
Arènpalmstraat, 1104DB Amsterdam

112 melding
Zaterdag 3-1-2026 om 19:41
Lontarpalmstraat, Amsterdam

112 melding
Vrijdag 2-1-2026 om 23:21
Glitterstraat, 1103SK Amsterdam

Nieuw bedrijf
Januari 2026
Galantstraat 87, 1103SH Amsterdam

112 melding
Dinsdag 23-12-2025 om 05:34
Glitterstraat, 1103SK Amsterdam

Direct een e-mail ontvangen bij nieuwe meldingen in deze regio?

Meld je dan GRATIS aan voor de Oozo Alert service voor Grunder/Koningshoef

Instellen

Meer nieuws in Grunder/Koningshoef

Weten hoe eenvoudig het is om af te vallen? Zonder pillen en smeersels en zonder je in het zweet te werken!
Kijk op eenvoudig-afvallen.nl

© 2012 - 2026 OOZO.nl - info@oozo.nl - Gegevens verwijderen? | Disclaimer | Privacy statement