Woning Spelderholt 59 Amsterdam

Spelderholt 59, 1025BK Amsterdam

Ontvang updates voor De Kleine Wereld

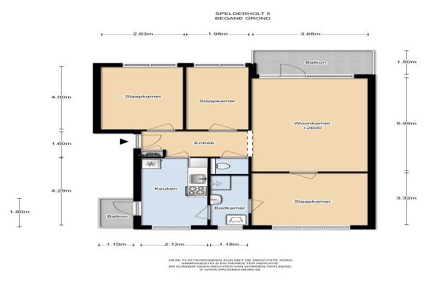
Het adres van deze woning uit 1967 is Spelderholt 59 te Amsterdam. Het pand heeft een oppervlakte van 76m² en heeft 4 kamers kamers waarvan 3 slaapkamers. De geschatte waarde van deze woning is € 199.000.

Bekijk alle woningen in De Kleine Wereld

Gegevens van Portiekflat (appartement)

Bouwjaar
1967
Geschatte waarde
€ 199.000
Oppervlakte
76 m2
Inhoud
243 m3
Aantal kamers
4 kamers
Slaapkamers
3
Badkamers
1 apart toilet
Soort bouw
Bestaande bouw
Eigendomssituatie
Gemeentelijke erfpacht
Ligging
In woonwijk

Voorzieningen in de buurt

Boodschappen0,3 km
Grote supermarkt0,5 km
Cafetaria0,3 km
Restaurant0,5 km
Huisarts0,4 km
Ziekenhuis1,8 km
Kinderdagverblijf0,2 km
BSO0,2 km
Alle voorzieningen in De Kleine Wereld

Binnenkijken bij Spelderholt 59 te Amsterdam

Meer meldingen in deze omgeving

112 melding
Woensdag 17-12-2025 om 20:18
Warnsborn, Amsterdam

112 melding
Dinsdag 16-12-2025 om 14:24
Hagenau, Amsterdam

112 melding
Dinsdag 16-12-2025 om 14:09
Hagenau, Amsterdam

Nieuw bedrijf
December 2025
Houdringe 101, 1025BC Amsterdam

112 melding
Maandag 15-12-2025 om 00:18
Hildsven, Amsterdam

Binnenkijken bij
Zondag 7-12-2025
Savelsbos 20, 1025BE Amsterdam

112 melding
Zaterdag 6-12-2025 om 09:43
Bakkerswaal, Amsterdam

112 melding
Vrijdag 5-12-2025 om 20:10
Spelderholt, Amsterdam

Direct een e-mail ontvangen bij nieuwe meldingen in deze regio?

Meld je dan GRATIS aan voor de Oozo Alert service voor De Kleine Wereld

Instellen

Meer nieuws in De Kleine Wereld

Weten hoe eenvoudig het is om af te vallen? Zonder pillen en smeersels en zonder je in het zweet te werken!
Kijk op eenvoudig-afvallen.nl

© 2012 - 2025 OOZO.nl - info@oozo.nl - Gegevens verwijderen? | Disclaimer | Privacy statement