Woning Zilverberg 78 Amsterdam

Zilverberg 78, 1025CJ Amsterdam

Ontvang updates voor De Kleine Wereld

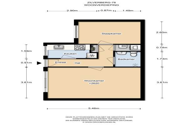
Het adres van deze woning uit 1968 is Zilverberg 78 te Amsterdam. Het pand heeft een oppervlakte van 44m² en heeft 2 kamers kamers waarvan 1 slaapkamers. De geschatte waarde van deze woning is € 160.000.

Bekijk alle woningen in De Kleine Wereld

Gegevens van Benedenwoning (appartement)

Bouwjaar
1968
Geschatte waarde
€ 160.000
Oppervlakte
44 m2
Inhoud
155 m3
Aantal kamers
2 kamers
Slaapkamers
1
Badkamers
1 badkamer
Soort bouw
Bestaande bouw
Eigendomssituatie
Gemeentelijk eigendom belast met erfpacht (einddatum erfpacht: 15-11-2053)
Ligging
Aan rustige weg en in woonwijk

Voorzieningen in de buurt

Boodschappen0,3 km
Grote supermarkt0,5 km
Cafetaria0,3 km
Restaurant0,5 km
Huisarts0,4 km
Ziekenhuis1,8 km
Kinderdagverblijf0,2 km
BSO0,2 km
Alle voorzieningen in De Kleine Wereld

Binnenkijken bij Zilverberg 78 te Amsterdam

Meer meldingen in deze omgeving

Nieuw bedrijf
Januari 2026
H. Cleyndertweg 338, 1025EM Amsterdam

Nieuw bedrijf
Januari 2026
Houdringe 91, 1025BB Amsterdam

Nieuw bedrijf
Januari 2026
H. Cleyndertweg 242, 1025EK Amsterdam

112 melding
Dinsdag 20-1-2026 om 06:57
Mariëndaal, Amsterdam

112 melding
Dinsdag 20-1-2026 om 06:57
Mariëndaal, Amsterdam

112 melding
Dinsdag 20-1-2026 om 06:57
Mariëndaal, Amsterdam

112 melding
Woensdag 14-1-2026 om 10:02
Spelderholt, Amsterdam

112 melding
Dinsdag 13-1-2026 om 21:01
Dijkwater, Amsterdam

Direct een e-mail ontvangen bij nieuwe meldingen in deze regio?

Meld je dan GRATIS aan voor de Oozo Alert service voor De Kleine Wereld

Instellen

Meer nieuws in De Kleine Wereld

Weten hoe eenvoudig het is om af te vallen? Zonder pillen en smeersels en zonder je in het zweet te werken!
Kijk op eenvoudig-afvallen.nl

© 2012 - 2026 OOZO.nl - info@oozo.nl - Gegevens verwijderen? | Disclaimer | Privacy statement