Woning Het Breed 569 Amsterdam

Het Breed 569, 1025HV Amsterdam

Ontvang updates voor Plan van Gool

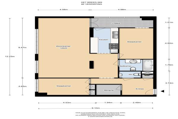
Het adres van deze woning uit 1972 is Het Breed 569 te Amsterdam. Het pand heeft een oppervlakte van 111m² en heeft 3 kamers kamers waarvan 2 slaapkamers. De geschatte waarde van deze woning is € 245.000.

Bekijk alle woningen in Plan van Gool

Gegevens van Portiekflat (appartement)

Bouwjaar
1972
Geschatte waarde
€ 245.000
Oppervlakte
111 m2
Inhoud
344 m3
Aantal kamers
3 kamers
Slaapkamers
2
Badkamers
1 badkamer en 1 apart toilet
Soort bouw
Bestaande bouw
Eigendomssituatie
Gemeentelijk eigendom belast met erfpacht (einddatum erfpacht: 16-07-2019)
Ligging
Aan park en aan rustige weg

Voorzieningen in de buurt

Boodschappen0,3 km
Grote supermarkt0,4 km
Cafetaria0,3 km
Restaurant0,4 km
Huisarts0,7 km
Ziekenhuis2,1 km
Kinderdagverblijf0,3 km
BSO0,4 km
Alle voorzieningen in Plan van Gool

Binnenkijken bij Het Breed 569 te Amsterdam

Meer meldingen in deze omgeving

Nieuw bedrijf
Februari 2026
Het Hoogt 38, 1025HA Amsterdam

Nieuw bedrijf
Februari 2026
Benedenlangs 171, 1025KG Amsterdam

112 melding
Woensdag 11-2-2026 om 16:53
Het Hoogt, Amsterdam

112 melding
Woensdag 11-2-2026 om 05:15
Het Laagt, Amsterdam

112 melding
Maandag 9-2-2026 om 19:19
Het Hoogt, Amsterdam

112 melding
Maandag 9-2-2026 om 08:47
Benedenlangs, Amsterdam

Binnenkijken bij
Zaterdag 7-2-2026
Het Breed 631, 1025HX Amsterdam

Binnenkijken bij
Donderdag 5-2-2026
Het Hoogt 166, 1025HD Amsterdam

Direct een e-mail ontvangen bij nieuwe meldingen in deze regio?

Meld je dan GRATIS aan voor de Oozo Alert service voor Plan van Gool

Instellen

Meer nieuws in Plan van Gool

Weten hoe eenvoudig het is om af te vallen? Zonder pillen en smeersels en zonder je in het zweet te werken!
Kijk op eenvoudig-afvallen.nl

© 2012 - 2026 OOZO.nl - info@oozo.nl - Gegevens verwijderen? | Disclaimer | Privacy statement