Woning Kalfjeslaan 36 Amsterdam

Kalfjeslaan 36, 1083AA Amsterdam

Ontvang updates voor Buitenveldert Zuidoost

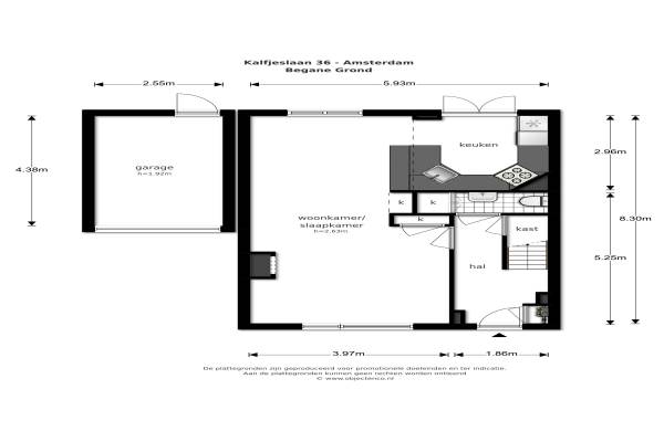
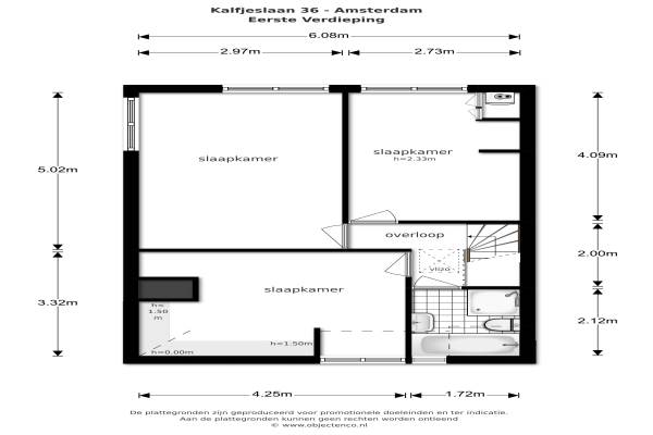
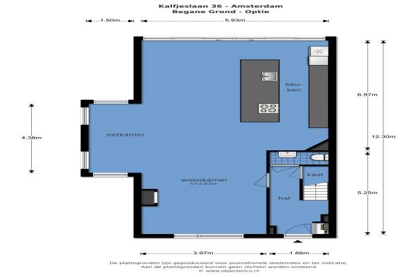
Het adres van deze woning is Kalfjeslaan 36 te Amsterdam. Het pand heeft een oppervlakte van 99m² en een perceeloppervlakte van 474m² en heeft 5 kamers kamers waarvan 3 slaapkamers. De geschatte waarde van deze woning is € 795.000.

Bekijk alle woningen in Buitenveldert Zuidoost

Gegevens van Eengezinswoning, 2-onder-1-kapwoning (dijkwoning)

Geschatte waarde
€ 795.000
Oppervlakte
99 m2
Inhoud
372 m3
Aantal kamers
5 kamers
Slaapkamers
3
Soort bouw
Bestaande bouw
Eigendomssituatie
Volle eigendom
Tuin
Achtertuin
Achtertuin
315 m² (46,6m diep en 6,75m breed)

Voorzieningen in de buurt

Boodschappen0,3 km
Grote supermarkt0,4 km
Cafetaria0,3 km
Restaurant0,2 km
Huisarts0,9 km
Ziekenhuis2,6 km
Kinderdagverblijf0,3 km
BSO0,3 km
Alle voorzieningen in Buitenveldert Zuidoost

Binnenkijken bij Kalfjeslaan 36 te Amsterdam

Meer meldingen in deze omgeving

Binnenkijken bij
Vrijdag 14-11-2025
Aldengoor 11, 1083AK Amsterdam

Nieuw bedrijf
November 2025
Kanteel 7, 1083DA Amsterdam

Nieuw bedrijf
November 2025
Bouvigne 281, 1083BP Amsterdam

Nieuw bedrijf
November 2025
Van Nijenrodeweg 150, 1083EK Amsterdam

Nieuw bedrijf
November 2025
Kastelenstraat 511, 1083CB Amsterdam

Nieuw bedrijf
November 2025
Nieuw Herlaer 2A, 1083BD Amsterdam

Nieuw bedrijf
November 2025
Van Boshuizenstraat 261, 1083AX Amsterdam

112 melding
Woensdag 12-11-2025 om 20:20
Roffart, 1083CJ Amsterdam

Direct een e-mail ontvangen bij nieuwe meldingen in deze regio?

Meld je dan GRATIS aan voor de Oozo Alert service voor Buitenveldert Zuidoost

Instellen

Meer nieuws in Buitenveldert Zuidoost

Weten hoe eenvoudig het is om af te vallen? Zonder pillen en smeersels en zonder je in het zweet te werken!
Kijk op eenvoudig-afvallen.nl

© 2012 - 2025 OOZO.nl - info@oozo.nl - Gegevens verwijderen? | Disclaimer | Privacy statement