Woning Oudezijds Voorburgwal 160 Amsterdam

Oudezijds Voorburgwal 160, 1012GH Amsterdam

Ontvang updates voor Oude Kerk e.o.

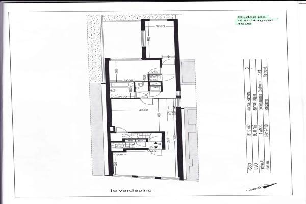
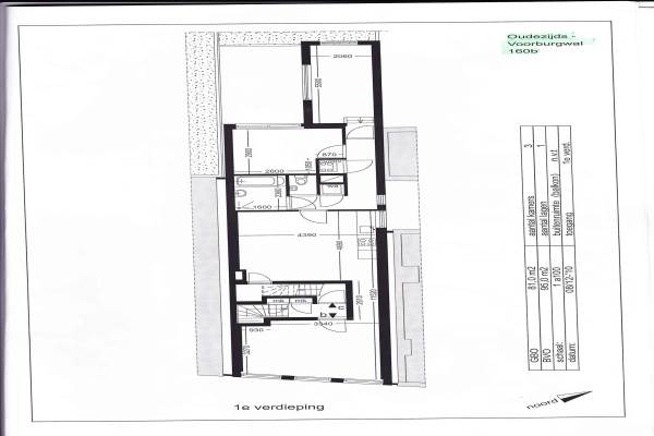
Het adres van deze woning is Oudezijds Voorburgwal 160 te Amsterdam. Het pand heeft een oppervlakte van 77m² en heeft 3 kamers kamers waarvan 2 slaapkamers. De geschatte waarde van deze woning is € 447.500.

Bekijk alle woningen in Oude Kerk e.o.

Gegevens van Bovenwoning (appartement)

Bouwjaar
Voor 1906
Geschatte waarde
€ 447.500
Oppervlakte
77 m2
Inhoud
165 m3
Aantal kamers
3 kamers
Slaapkamers
2
Badkamers
1 badkamer en 1 apart toilet
Soort bouw
Bestaande bouw
Eigendomssituatie
Gemeentelijk eigendom belast met erfpacht

Voorzieningen in de buurt

Boodschappen0,0 km
Grote supermarkt0,3 km
Cafetaria0,0 km
Restaurant0,1 km
Huisarts0,3 km
Ziekenhuis0,8 km
Kinderdagverblijf0,3 km
BSO0,5 km
Alle voorzieningen in Oude Kerk e.o.

Binnenkijken bij Oudezijds Voorburgwal 160 te Amsterdam

Meer meldingen in deze omgeving

112 melding
Donderdag 1-1-2026 om 04:08
Enge Kerksteeg, 1012GV Amsterdam

Nieuw bedrijf
Januari 2026
Enge Kerksteeg 1B, 1012GV Amsterdam

112 melding
Donderdag 1-1-2026 om 00:53
Oudekerksplein, Amsterdam

112 melding
Donderdag 1-1-2026 om 00:46
Oudekerksplein, Amsterdam

112 melding
Donderdag 1-1-2026 om 00:46
Oudekerksplein, Amsterdam

112 melding
Dinsdag 30-12-2025 om 19:38
Beursplein, 1012JW Amsterdam

112 melding
Zondag 28-12-2025 om 21:06
Beursstraat, Amsterdam

Nieuw bedrijf
December 2025
Oudezijds Voorburgwal 92C, 1012GH Amsterdam

Direct een e-mail ontvangen bij nieuwe meldingen in deze regio?

Meld je dan GRATIS aan voor de Oozo Alert service voor Oude Kerk e.o.

Instellen

Meer nieuws in Oude Kerk e.o.

Weten hoe eenvoudig het is om af te vallen? Zonder pillen en smeersels en zonder je in het zweet te werken!
Kijk op eenvoudig-afvallen.nl

© 2012 - 2026 OOZO.nl - info@oozo.nl - Gegevens verwijderen? | Disclaimer | Privacy statement