Woning Leeuwendalersweg 753 Amsterdam

Leeuwendalersweg 753, 1061BK Amsterdam

Ontvang updates voor Kolenkitbuurt Zuid

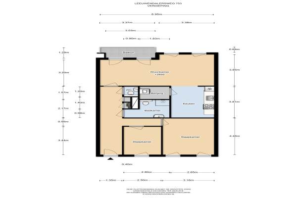
Het adres van deze woning uit 2011 is Leeuwendalersweg 753 te Amsterdam. Het pand heeft een oppervlakte van 83m² en heeft 3 kamers kamers waarvan 2 slaapkamers. De geschatte waarde van deze woning is € 325.000.

Bekijk alle woningen in Kolenkitbuurt Zuid

Gegevens van Galerijflat (appartement)

Bouwjaar
2011
Geschatte waarde
€ 325.000
Oppervlakte
83 m2
Inhoud
261 m3
Aantal kamers
3 kamers
Slaapkamers
2
Badkamers
1 badkamer en 1 apart toilet
Soort bouw
Bestaande bouw
Eigendomssituatie
Gemeentelijke erfpacht (einddatum erfpacht: 15-03-2059)
Ligging
In woonwijk

Voorzieningen in de buurt

Boodschappen0,3 km
Grote supermarkt0,6 km
Cafetaria0,5 km
Restaurant0,3 km
Huisarts0,3 km
Ziekenhuis1,3 km
Kinderdagverblijf0,3 km
BSO0,4 km
Alle voorzieningen in Kolenkitbuurt Zuid

Binnenkijken bij Leeuwendalersweg 753 te Amsterdam

Meer meldingen in deze omgeving

112 melding
Dinsdag 25-11-2025 om 06:12
Blauwvoetstraat, Amsterdam

Nieuw bedrijf
November 2025
De Leeuw van Vlaanderenstraat 10B, 1061CS Amsterdam

Nieuw bedrijf
November 2025
Woutertje Pietersestraat 203, 1061DD Amsterdam

Nieuw bedrijf
November 2025
Leeuwendalersweg 524, 1061BG Amsterdam

Nieuw bedrijf
November 2025
Woutertje Pietersestraat 392, 1061DG Amsterdam

Nieuw bedrijf
November 2025
Leeuwendalersweg 590, 1061BH Amsterdam

112 melding
Vrijdag 14-11-2025 om 23:33
Ernest Staesstraat, Amsterdam

112 melding
Vrijdag 14-11-2025 om 12:41
Jacob van Arteveldestraat, Amsterdam

Direct een e-mail ontvangen bij nieuwe meldingen in deze regio?

Meld je dan GRATIS aan voor de Oozo Alert service voor Kolenkitbuurt Zuid

Instellen

Meer nieuws in Kolenkitbuurt Zuid

Weten hoe eenvoudig het is om af te vallen? Zonder pillen en smeersels en zonder je in het zweet te werken!
Kijk op eenvoudig-afvallen.nl

© 2012 - 2025 OOZO.nl - info@oozo.nl - Gegevens verwijderen? | Disclaimer | Privacy statement