Woning Blauwvoetstraat 14 Amsterdam

Blauwvoetstraat 14, 1061BV Amsterdam

Ontvang updates voor Kolenkitbuurt Zuid

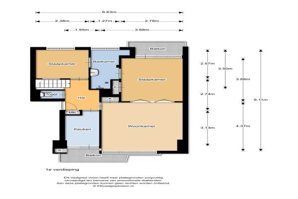
Het adres van deze woning uit 1952 is Blauwvoetstraat 14 te Amsterdam. Het pand heeft een oppervlakte van 75m² en heeft 5 kamers kamers waarvan 4 slaapkamers. De geschatte waarde van deze woning is € 350.000.

Bekijk alle woningen in Kolenkitbuurt Zuid

Gegevens van Benedenwoning (appartement)

Bouwjaar
1952
Geschatte waarde
€ 350.000
Oppervlakte
75 m2
Inhoud
188 m3
Aantal kamers
5 kamers
Slaapkamers
4
Badkamers
1 badkamer en 1 apart toilet
Soort bouw
Bestaande bouw
Eigendomssituatie
Gemeentelijk eigendom belast met erfpacht
Ligging
Aan water, aan rustige weg en in woonwijk
Tuin
Achtertuin
Achtertuin
49 m² (7m diep en 7m breed)

Voorzieningen in de buurt

Boodschappen0,3 km
Grote supermarkt0,6 km
Cafetaria0,5 km
Restaurant0,3 km
Huisarts0,3 km
Ziekenhuis1,3 km
Kinderdagverblijf0,3 km
BSO0,4 km
Alle voorzieningen in Kolenkitbuurt Zuid

Binnenkijken bij Blauwvoetstraat 14 te Amsterdam

Meer meldingen in deze omgeving

Nieuw bedrijf
Januari 2026
Blauwvoetstraat 101, 1061BV Amsterdam

Nieuw bedrijf
Januari 2026
Erasmusgracht 506, 1061BL Amsterdam

112 melding
Donderdag 1-1-2026 om 03:16
De Leeuw van Vlaanderenstraat, Amsterdam

Nieuw bedrijf
Januari 2026
De Leeuw van Vlaanderenstraat 26E, 1061CS Amsterdam

112 melding
Zaterdag 27-12-2025 om 16:48
De Leeuw van Vlaanderenstraat, Amsterdam

Nieuw bedrijf
December 2025
Blauwvoetstraat 73, 1061BM Amsterdam

Nieuw bedrijf
December 2025
Woutertje Pietersestraat 403, 1061DG Amsterdam

112 melding
Woensdag 24-12-2025 om 22:45
Baas Gansendonckstraat, Amsterdam

Direct een e-mail ontvangen bij nieuwe meldingen in deze regio?

Meld je dan GRATIS aan voor de Oozo Alert service voor Kolenkitbuurt Zuid

Instellen

Meer nieuws in Kolenkitbuurt Zuid

Weten hoe eenvoudig het is om af te vallen? Zonder pillen en smeersels en zonder je in het zweet te werken!
Kijk op eenvoudig-afvallen.nl

© 2012 - 2026 OOZO.nl - info@oozo.nl - Gegevens verwijderen? | Disclaimer | Privacy statement