Woning Herfststraat 10 Amsterdam

Herfststraat 10, 1109AZ Amsterdam

Ontvang updates voor Dorp Driemond

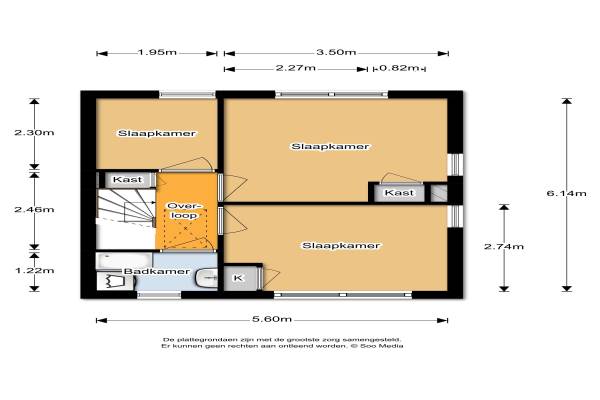
Het adres van deze woning uit 1950 is Herfststraat 10 te Amsterdam. Het pand heeft een oppervlakte van 69m² en een perceeloppervlakte van 271m² en heeft 4 kamers kamers waarvan 3 slaapkamers. De geschatte waarde van deze woning is € 225.000.

Bekijk alle woningen in Dorp Driemond

Gegevens van Eengezinswoning, hoekwoning

Bouwjaar
1950
Geschatte waarde
€ 225.000
Oppervlakte
69 m2
Inhoud
260 m3
Aantal kamers
4 kamers
Slaapkamers
3
Badkamers
1 badkamer en 1 apart toilet
Soort bouw
Bestaande bouw
Eigendomssituatie
Gemeentelijk eigendom belast met erfpacht
Ligging
Aan rustige weg, beschutte ligging en in woonwijk
Tuin
Achtertuin en voortuin
Achtertuin
180 m² (30m diep en 6m breed)

Voorzieningen in de buurt

Boodschappen2,7 km
Grote supermarkt0,5 km
Cafetaria0,3 km
Restaurant1,6 km
Huisarts2,4 km
Ziekenhuis3,8 km
Kinderdagverblijf0,3 km
BSO0,2 km
Alle voorzieningen in Dorp Driemond

Binnenkijken bij Herfststraat 10 te Amsterdam

Meer meldingen in deze omgeving

112 melding
Donderdag 4-12-2025 om 16:33
Burgemeester Bletzstraat, Amsterdam

Nieuw bedrijf
December 2025
Zandpad-Driemond 26, 1109AG Amsterdam

Nieuw bedrijf
December 2025
Wyandottestraat 12, 1109BT Amsterdam

112 melding
Dinsdag 2-12-2025 om 02:22
Zonnehof, Amsterdam

112 melding
Zaterdag 22-11-2025 om 07:24
Seizoenenhof, Amsterdam

Nieuw bedrijf
November 2025
Burgemeester Kasteleinstraat 28, 1109BC Amsterdam

112 melding
Dinsdag 18-11-2025 om 08:17
Zonnehof, Amsterdam

112 melding
Zaterdag 15-11-2025 om 20:02
Zonnehof, Amsterdam

Direct een e-mail ontvangen bij nieuwe meldingen in deze regio?

Meld je dan GRATIS aan voor de Oozo Alert service voor Dorp Driemond

Instellen

Meer nieuws in Dorp Driemond

Weten hoe eenvoudig het is om af te vallen? Zonder pillen en smeersels en zonder je in het zweet te werken!
Kijk op eenvoudig-afvallen.nl

© 2012 - 2025 OOZO.nl - info@oozo.nl - Gegevens verwijderen? | Disclaimer | Privacy statement