Woning Lorreinenstraat 113 Amsterdam

Lorreinenstraat 11-3, 1055CZ Amsterdam

Ontvang updates voor Erasmusparkbuurt West

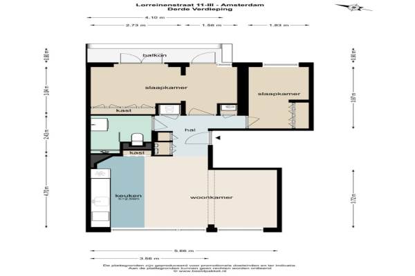
Het adres van deze woning uit 1950 is Lorreinenstraat 113 te Amsterdam. Het pand heeft een oppervlakte van 57m² en heeft 3 kamers kamers waarvan 2 slaapkamers. De geschatte waarde van deze woning is € 499.500.

Bekijk alle woningen in Erasmusparkbuurt West

Gegevens van Bovenwoning (appartement)

Bouwjaar
1950
Geschatte waarde
€ 499.500
Oppervlakte
57 m2
Inhoud
187 m3
Aantal kamers
3 kamers
Slaapkamers
2
Badkamers
1 badkamer
Soort bouw
Bestaande bouw
Eigendomssituatie
Gemeentelijk eigendom belast met erfpacht
Ligging
In woonwijk en vrij uitzicht

Voorzieningen in de buurt

Boodschappen0,2 km
Grote supermarkt0,3 km
Cafetaria0,2 km
Restaurant0,2 km
Huisarts0,2 km
Ziekenhuis1,6 km
Kinderdagverblijf0,2 km
BSO0,3 km
Alle voorzieningen in Erasmusparkbuurt West

Binnenkijken bij Lorreinenstraat 113 te Amsterdam

Meer meldingen in deze omgeving

Binnenkijken bij
Maandag 9-3-2026
Heer Halewijnstraat 16H, 1055SR Amsterdam

Binnenkijken bij
Maandag 9-3-2026
Gloriantstraat 5H, 1055CS Amsterdam

Binnenkijken bij
Maandag 9-3-2026
Sanderijnstraat 281, 1055BT Amsterdam

Nieuw bedrijf
Maart 2026
Lanseloetstraat 5H, 1055BA Amsterdam

Binnenkijken bij
Zaterdag 7-3-2026
Esmoreitstraat 402, 1055CG Amsterdam

Binnenkijken bij
Zaterdag 7-3-2026
Heer Halewijnstraat 131, 1055SR Amsterdam

112 melding
Donderdag 5-3-2026 om 18:03
Blancefloorstraat, Amsterdam

112 melding
Donderdag 5-3-2026 om 16:23
Griseldestraat, Amsterdam

Direct een e-mail ontvangen bij nieuwe meldingen in deze regio?

Meld je dan GRATIS aan voor de Oozo Alert service voor Erasmusparkbuurt West

Instellen

Meer nieuws in Erasmusparkbuurt West

Weten hoe eenvoudig het is om af te vallen? Zonder pillen en smeersels en zonder je in het zweet te werken!
Kijk op eenvoudig-afvallen.nl

© 2012 - 2026 OOZO.nl - info@oozo.nl - Gegevens verwijderen? | Disclaimer | Privacy statement