Woning Mercatorstraat 109 Amsterdam

Mercatorstraat 109, 1056RB Amsterdam

Ontvang updates voor Robert Scottbuurt Oost

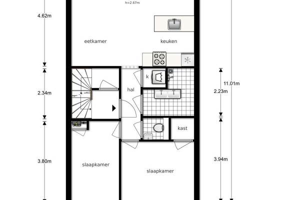
Het adres van deze woning uit 1927 is Mercatorstraat 109 te Amsterdam. Het pand heeft een oppervlakte van 57m² en heeft 3 kamers kamers waarvan 2 slaapkamers. De geschatte waarde van deze woning is € 370.000.

Bekijk alle woningen in Robert Scottbuurt Oost

Gegevens van Bovenwoning (appartement)

Bouwjaar
1927
Geschatte waarde
€ 370.000
Oppervlakte
57 m2
Inhoud
187 m3
Aantal kamers
3 kamers
Slaapkamers
2
Badkamers
1 badkamer en 1 apart toilet
Soort bouw
Bestaande bouw
Eigendomssituatie
Volle eigendom
Ligging
Aan park, aan rustige weg, in woonwijk en vrij uitzicht

Voorzieningen in de buurt

Boodschappen0,2 km
Grote supermarkt0,4 km
Cafetaria0,2 km
Restaurant0,1 km
Huisarts0,2 km
Ziekenhuis1,0 km
Kinderdagverblijf0,3 km
BSO0,3 km
Alle voorzieningen in Robert Scottbuurt Oost

Binnenkijken bij Mercatorstraat 109 te Amsterdam

Meer meldingen in deze omgeving

Binnenkijken bij
Zondag 1-2-2026
Erasmusgracht 271, 1056BC Amsterdam

Binnenkijken bij
Vrijdag 30-1-2026
Mercatorstraat 972, 1056RB Amsterdam

Binnenkijken bij
Zondag 25-1-2026
Jan van Galenstraat 1703, 1056CJ Amsterdam

Binnenkijken bij
Zondag 25-1-2026
Orteliusstraat 2891A, 1056NX Amsterdam

Binnenkijken bij
Woensdag 21-1-2026
Hoofdweg 4913, 1056CZ Amsterdam

Binnenkijken bij
Vrijdag 9-1-2026
Mercatorstraat 952, 1056RB Amsterdam

Binnenkijken bij
Vrijdag 9-1-2026
Orteliusstraat 3001, 1056PN Amsterdam

Binnenkijken bij
Woensdag 7-1-2026
Jan van Galenstraat 2101, 1056CK Amsterdam

Direct een e-mail ontvangen bij nieuwe meldingen in deze regio?

Meld je dan GRATIS aan voor de Oozo Alert service voor Robert Scottbuurt Oost

Instellen

Meer nieuws in Robert Scottbuurt Oost

Weten hoe eenvoudig het is om af te vallen? Zonder pillen en smeersels en zonder je in het zweet te werken!
Kijk op eenvoudig-afvallen.nl

© 2012 - 2026 OOZO.nl - info@oozo.nl - Gegevens verwijderen? | Disclaimer | Privacy statement